根據新加坡市區重建局4月1日發布的預估數據,第一季私宅價格指數上升0.7點至174.3點
這已是私宅價格連續八個季度,也就是24個月上漲!頂層公寓價格也不斷刷新記錄!
(penhouse示意圖)
公寓單價再創曆史新高 降溫措施不能阻擋火熱市場
新加坡頂層公寓Penhouse素有“房産之王”的說法。居住于頂層公寓可不僅僅是購買一套昂貴的房産。
也代表奢華的生活方式,更是一種特殊身份的象征,畢竟一個項目只有罕見的幾套或者一套頂層公寓。
最近由國浩地産GuocoLand開發的Midtown Modern的頂層公寓創下了每平方英尺4,278新幣的價格新高!
(圖源:edgeprop)
什麽概念呢,1平方米=10.76英尺,也就是合46031新幣每平方米!換算成人民幣那就是21萬多!
(圖源:XEcurrency)
這個新的價格記錄是由開發商在3月27日以1400萬新幣的價格售出的一個3272平方英尺的頂樓單位創造的。
注意,這是該項目賣出的第二個頂樓公寓。
第一個是在去年2021年3月19日項目最初推出時售出的,3520平方英尺的單位賣了1483萬新幣(合4213新幣/平方英尺)
同一個項目的新的頂層公寓,單價從4213新幣到4,278新幣,可以看出這一年新加坡房價真的漲了不少。
別忘了,去年底新加坡還推出了一些“降溫措施”,但經過降溫,該項目單價依然上漲了。
看來降溫措施也沒能阻擋新加坡房價的堅挺。
當然堅挺的房價和Midtown Modern本身是個很棒的樓盤也有關系,這裏給大家介紹一個全新市區公寓項目,而且還是萬衆期待的綜合項目!
每年新加坡綜合項目的開盤都會引起市場的一片熱潮,同時還會帶動市場上已有綜合項目的熱銷!
Piccadilly Grand 花拉公園綜合體項目開盤 4月16日開盤火爆問世 今年最值得投資低價高項目之一 可拼地段 可拼顔值和拼價格 的城市綜合體住宅!
項目信息
Piccadilly Grand
名稱:Piccadilly Grand
發展商:知名開發商城市發展CDL和香港置地MCL
房屋地契:99年
所在區域:D08 — 花拉公園/實龍崗
建築面積:8,742 平方米/94,000平方尺
項目規模:3棟23層高的大樓,一共407間,項目一樓集成了商店,餐飲店,幼兒園
(一層布局)
(3層及以上小區布局)
項目地址: 1,3,5 Northumberland Road
預計交房: 2026年8月
拼地段
買房就是Location、Location、Location(地點、地點、地點)!
Piccadilly Grand直通花拉公園地鐵站,兩站地鐵抵達多美歌與烏節路,三站地鐵抵達CBD萊佛士坊,讓金領生活無比便利。
不但交通方便,直通地鐵站無論上班、購物、用餐、看電影,都無懼風雨、氣象免疫。
連接地鐵的綜合體住宅項目僅占新加坡所有私人住宅庫存的3%左右,擁有得天獨厚的稀缺性、便利性,並且迎合了低碳出行的必然未來趨勢。
新加坡擁車證COE已經創下新高,住在地鐵邊上不買車,省下一大筆錢。
樓下配備多家開發商統一管理的餐飲與零售商鋪,更設有托兒中心。讓年輕的都市寶爸寶媽們沒有後顧之憂。
樓盤還坐落在知名小學-聖約瑟書院附小(SJI Junior)一公裏內,妥妥的學區房更是市區綜合體項目不容易找到的屬性。
拼價格
相比同期開盤的項目,Piccadilly Grand很有優勢。 如此靠近市區並且在地鐵旁邊的地段才$1129的地價,接著它之後開盤的市郊項目價位都將逼近Piccadilly Grand,因爲那些項目的拿地價格都比Piccadilly高。
可以說這個項目是前一批低價地皮所能開發的最後一個樓盤。
拼顔值
樓盤朝東、南方向的景觀幾乎無遮擋,可遠眺金沙甚至南部海景。
(風景示意圖:網絡)
樓盤優質地段和設計背後,一定有個厲害的開發商。
該項目是兩大開發商城市發展集團和MCL Land強強聯手,明顯結合了二者的設計理念,創造出精益求精的新生代住宅産品。
兩家開發商都分別以高品質著稱。
雖然Piccadilly Grand由城市發展主導開發, 卻融入了MCL對于戶型布局科學性的硬性指標,比如幾乎每個客房都要輕松容納1.5米雙人床。
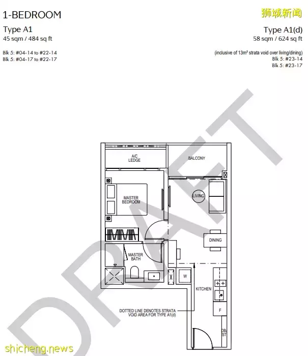
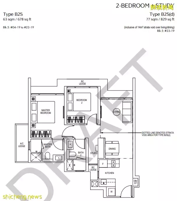
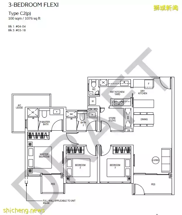
亮眼戶型
Piccadilly Grand
讓我們細細來看亮眼的戶型設計(部分戶型圖)
一居和一居加書房單位布局非常高效,房間均可放置1.8米大床,就算未來出租給歐美租客,也不會擔心他們嫌房間空間狹小;
2. 兩居均采用最高效啞鈴形布局,兩個房間各自有自己的獨立內衛,最大化保障隱私,並且沒有絲毫浪費的走道空間;
3. 有一款兩居加書房戶型采用明廚明衛的邊套設計,也會非常討喜;
4. 三到五居的戶型設計也都非常科學高效,室內面積分布均勻合理,完全沒毛病;
5. 項目的陽台設計都配備約兩米的足夠縱深,讓陽台也能成爲非常實用的戶外起居或用餐空間。
由于市場預期正式開盤 極有可能多數戶型售罄! 趕快微信二維碼預約 即將開始的預售期免費看房

























