隽永華宅
卓爾不群
MEYER HOUSE
這是一處獨特的低層私人公寓開發項目,它坐落在新加坡東海岸的高檔私人住宅區內,周圍是一系列的自然景觀和娛樂、生活設施,新加坡著名的東海岸公園與它咫尺相望。
這就是Meyer House,一個占地109,630平方英尺的5層高,低密度的豪華公寓項目。Meyer House的理念就是以重視居民的隱私爲主,從它的設計和個性的設施便可以看出。僅56個豪華住宅單位均享有私人大堂和私人電梯。這也是首次在新加坡以開發人員制定的利賓服務,確保每一位居民的要求能得到無微不至的照顧,無論是餐廳預訂、交通預訂或是安排酒店客房等服務。
設計理念
生生不息的大自然
WOHA 建築師們巧妙地讓郁郁蔥蔥的花園景觀,與周邊公園連綿成無垠美景;精心設計的潺潺流水蜿蜒在園區之中,爲居民們帶來清新舒暢的環境。而 Ramboll Studio Dreiseitl 景觀設計團隊,則把英國鄉村風格的迷人花圃設計,與高低起伏的小山丘完美融入其中。Yabu Pushelberg 室內設計團隊結合了當代設計與傳統工藝精神,將人們對大自然的禮贊,嵌于舒適的居家生活中。
當代大師聯袂打造,讓大自然生生不息于 MEYER HOUSE 的每個角落。
地點
夢寐以求的東部便利生活
您可以在Meyer House享受最美麗的東海岸生活,同時能快速抵達市中心的所有景點
關于Meyer House
獨一無二 卓越非凡
家的溫暖,始于優雅的私人獨立門廳與專屬直達電梯。所有四房式公寓與頂層豪華公寓,另設有專屬停車位。專業服務人員,隨時提供個人化的便利服務。
Yabu Pushelberg 一貫標志性的高尚優雅,設計師精湛地以渾然天成的璞質爲發想,完美诠釋了 MEYER HOUSE 的當代奢華。親手嚴選的品味家飾與裝潢,以和諧的色彩與相得益彰的紋理,交織出高度美感的居住空間,展現家的溫暖美好。
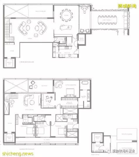
總平面圖
底層
車輛接送出
接迎大廳
接迎處
往地面層電梯
流水庭院
健身房
花園景觀階梯 (往地面層)
私人專屬電梯與門廳
地面層
入口
通往停車場的斜坡
私宴廳
休閑廳
電梯(通往底層)
30米泳池
池畔休憩區
兒童泳池
花園景觀階梯(通往底層)
Meyer House 專屬公園入口
守衛室
單位圖
三居室
四居室
頂層豪華公寓
充滿創意與巧思的菁英團隊
MEYER HOUSE 能成爲獨樹一幟的頂級住宅,來自三大國際菁英團隊的合作無間,分別是新加坡著名的建築師事務所 WOHA ARCHITECTS,來自德國的大師級景觀設計工作室 RAMBOLL STUDIO DREISEITL,以及加拿大引領世界潮流的室內設計公司 YABU PUSHELBERG。YABU PUSHELBERG從人性回歸自然的本能出發,打造出擁抱大地與環境的空間,拓展出前所未有的設計美學。心思缜密的創意大師們爲每一戶帶來絕無僅有的美感,猶如手工訂制般的細膩與巧思,全面提升了人們對生活品質的想像。
發展商





















