項目特點:
新加坡河畔新地標項目,風景別致,讓人過目不忘
河畔項目是稀缺産品,背山靠水,好風水的優越地段、
市場上稀缺的市中心綜合項目,集住宅、酒店、商場、服務式公寓
爲一 體,只占總住宅2.4%
享受新加坡河景、濱海灣金沙、中央商業區、福康甯公園美景
樓下就是福康甯地鐵站 ,3分鍾步行到克拉碼頭地鐵站
地處新加坡最受歡迎的河畔生活方式和娛樂區克拉碼頭
兩大品牌開發商城市發展CDL和凱德集團聯合開發,品質保證
聘請享譽國際著名建築設計公司Bjarke IngelsGroup(BIG)
項目簡介:
康甯河灣位于克拉碼頭和市政府黃金地段第6郵區,地處中央核心區,是新加坡河畔的大型城市綜合體,新加坡河畔的新地標,集甲級辦公樓、住宅、酒店、商場、地鐵站爲一體,頗受國人歡迎,將城市生活的便利與整體健康生活方式無縫融合。1分鍾步行到福康甯地鐵站(Fort Cannning MRT),3分鍾步行到克拉碼頭地鐵站(Clark Quay MRT),由兩棟24和48層雙子樓組成,總共696個住宅單位,擁有山水雙景觀,21層樓酒店、20層樓服務式公寓以及2層樓購物商場,提供1到5房豪華公寓、天空套房、頂層超豪華公寓,預計2026年交房
兩大頂級發展商強強聯手
城市發展公司CDL是新加坡最大型的發展商之一,公司成立于1963年,已經有58年項目開發經驗,開發的項目在全球29個國家103個不同地點,已開發超過43000套住宅,在新加坡開發高檔、中檔、大衆化住宅,同時新加坡最大的商業地産持有者之一,最近幾年開發的有代表性豪宅如銀峰(熱賣已售完)、風華南岸府(網紅盤)、Boulevard 88鉑瑞雅居(熱賣中)。凱德集團是新加坡最大發展商,擁有豐富的商場管理經驗,主要是新加坡和中國市場,集團業務遍布全球30多個國家,集團管理資産高達1387億新元,是新加坡最大型辦公樓業主和管理者之一,同時也是最大型服務公寓運營商。兩個大牌發展商強強聯手,必屬精品。
每戶單位享受不同美景
康甯河灣的每戶業主可享受不同的美景,四面環景,朝北可以看福康甯山景(綠色景觀),朝東可以享受濱海灣、金沙娛樂城、中央商業區都市美景、海景(高樓)),朝南可以享受新加坡河景、中央商業區CBD、聖淘沙美景(高樓),朝西享受烏節路美景.
比鄰克拉碼頭和福康甯公園
今日的克拉碼頭是現代和傳統的的完美融合,用多元化的概念襯托出它曾經的豐富的文化底蘊。五座複原後的戰前店屋以及倉庫經過藝術裝飾,克拉碼頭成爲衆多餐館、酒吧、娛樂設施的理想之家。多年來,克拉碼頭成爲新加坡人和遊客必去的休閑勝地,新加坡河克拉碼頭是新加坡最有娛樂活力的地段之一,相當于新加坡的母親河,類似上海的黃浦江、倫敦的泰晤士河。
福康甯公園是新加坡著名曆史地標,一座隱藏在鬧市裏面的公園,是運動健身愛好者和大自然愛好者喜歡的好去處,現在的有錢人都更注重身體健康,更願意花時間去運動,這個公園很多情侶選擇去這裏拍婚紗照,還有網紅打開點“龍之穴”,很多年輕人喜歡去這裏拍照留戀。
市場稀缺的綜合項目
綜合項目屬于市場上非常稀缺的産品,只占市場私人公寓(類似國內商品房)總量的2.4%,可見數量稀缺,物以稀爲貴,集地鐵、住宅、商場、甚至酒店爲一體的綜合項目備受歡迎,甚至比永久地契更好,在中央核心區的綜合項目更稀缺,如網紅樓盤風華南岸府、華麗世家,康甯河灣是下一個綜合項目,
漂亮圖片大放送:
3樓 康甯花園
24樓 康甯俱樂部
24樓 住宅私人管家服務
45樓空中俱樂部
散步新加坡河畔是種怎麽樣體驗
樣板房圖片
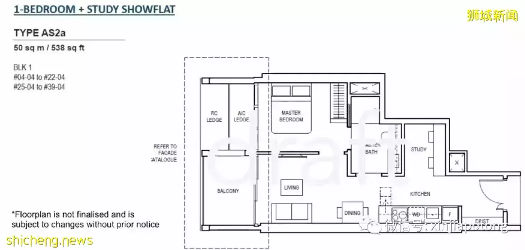
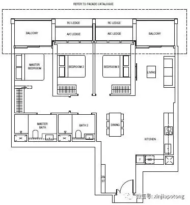
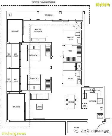
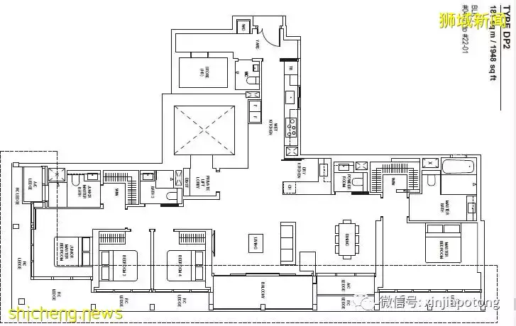
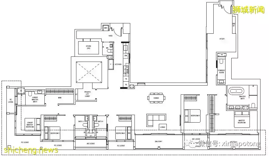
戶型圖介紹:
附注:只選其中一款戶型,還有其他戶型供選擇
1+書房,45平方米,價格163.7萬新幣起
2+書房,77平方米,戶型設計大氣,價格222.6萬新幣起
3房,105平方米,戶型寬敞,客廳和餐廳分區,價格313.6萬新幣起
3房,117平方米,客廳和主臥都帶陽台,價格319.2萬新幣起
豪華4房,182平方米,橫向客戶配大陽台,幹濕雙廚房,私人電梯入戶,價格530.9萬新幣起
豪華4房,181平方米,橫向客戶配大陽台,幹濕雙廚房,私人電梯入戶,價格552.5萬新幣起
豪華5房,259平方米,橫向客戶配大陽台,幹濕雙廚房,私人電梯入戶,價格832.6萬新幣起
























