瑞雅嘉苑 -新加坡河畔新地標
瑞雅嘉苑地處新加坡河畔屬于稀缺的鬧中取靜地段
項目有2棟36層,總共455個單位,此外Fraser Hospitality將會
開發80個服務型公寓, 3個倉庫改造爲高檔餐館、有機食品超市
99年地契,預計2022年10月交房 (快要交房了)
3座獨立式倉庫將會設計,改造爲保留式建築
把傳統建築風格和,新標志性現代建築住宅完美結合
每個單位都可以享受270度不同美景
如漂亮的新加坡河景、濱海灣景觀、
植物園景觀和烏節路市區景觀等
可以根據您的喜好選擇喜歡的朝向
這裏位于新加坡核心中央區域,毗鄰烏節路頂尖購物商圈,其中包括:Orchard ION,Great World City世界城,Somerset 313購物中心, Takashimaya高島屋以及Ngee Ann City義安城。
著名的克拉碼頭娛樂中心,新加坡河畔娛樂中心也位于此地;聚集了數百間聞名遐迩的流行酒吧、特色餐廳、咖啡館,羅波申碼頭、克拉碼頭是有生活品味的人喜歡去的地點。
不管時光如何匆匆變換第9郵區總是站在聚光燈下
因爲這裏,既是新加坡核心地帶,也是城市的發源地
是母親河流淌過的地方……
1860年代的新加坡河,每條河流都擁有屬于它獨特的故事
河流在每一個繁華城市的曆史發展,過程中都扮演舉足輕重的角色
新加坡有新加坡河、上海有黃浦江、紐約有哈德遜河、倫敦有泰晤士河等等
豐富的教育配套資源
瑞雅嘉苑周圍學校選擇衆多
附近的小學在一公裏內的有著名的
立化小學/River Valley Primary School
1-2公裏內雅德小學
兩公裏以內的學校有亞曆山大小學,聖瑪格麗特小學、CHIJ (Kellock)School、
Gan Eng Seng中學
如果您有意向給孩子報讀國際學校,周圍國際學校包括伊頓國際學校
Eton House International School、瑞典國際學校、芬蘭國際學校、
挪威國際學校、ISS國際學校、Chatsworth國際學校
有新加坡當地著名的私立幼兒園,PATS School和伊頓幼兒園Eton House等等
全方位滿足您孩子在教育方面需求
交通十分便利
雙地鐵口,步行4-5分鍾到達Havelock地鐵站,5分鍾可以步行到達大世界地鐵站
這兩個地鐵站預計2022年開通,將來可以搭乘地鐵直達樟宜機場
(湯申-東海岸線),等地鐵線開通後,將會大大提高該地區的房産價值
只需5分鍾車程即可到達,中央商業區CBD和烏節路購物區
10分鍾車程到達,世界文化遺産之一植物園,遛娃和戶外運動好去處
十分鍾開車去Dempsey Hill,享受特色餐館美食,喝點小酒享受惬意生活
商場林立,生活便利
商場包括大世界商場Great World City、Ion Orchard、Tanglin Shopping Mall、董廈、義安城、遠東大廈Far East Plaza、多美歌地鐵站Singapura Plaza、Valley Point、The Central等
請參考下圖,如果您想去購物的話,可以隨時去烏節路購物街逛逛。各大世界知名品牌應有盡有,生活極爲便利,靠近商場如Great World City、Tiong Bahru Plaza、[email protected]、義安城、Plaza Singapura等
著名建築設計事務所打造
著名建築設計事務所SCDA設計,創辦人是位有才華的帥哥-曾仕幹/Chan Soo Khian ,獲得華盛頓大學的藝術學士學位和耶魯大學建築學碩士學位,參與新加坡很多高檔住宅項目設計。新加坡最頂級豪宅項目The Marq、Twentyone Augullia Park、Leedon Residence、Clunny Park Residence、Amber Park等。
頂級用料,享受至尊品質
進口廚房: 德國品牌Poggenpohl
廚房和電器: 德國頂級品牌Gaggenau和Bosch
衛浴用品:意大利品牌Gessi和德國品牌Duravit
客廳和餐廳地板:大理石
臥室地板:工程式實木地板
智能家居系統,打造智能社區
項目采用最新的智能家居系統,讓科技進入生活,提供更便利的生活,如采用數碼電子鎖,無線網絡攝像頭門鈴、智能控制空調。
可以回家之前提前10分鍾就通過手機應用程序開啓空調,回家後就有涼快舒適的溫度,電梯入口支持臉部識別,使用手機應用程序預訂公寓配套設施如燒烤區、健身房等,使用門卡直接開信箱等等。
提供酒店式管家服務
除了上面介紹的智能家居系統外,項目有80個服務型公寓,該服務型公寓提供酒店式服務,酒店式服務包括提供貴賓服務、洗衣服務、家政清潔服務、遛狗服務、等等,讓您感覺像有一個大管家,不必爲家庭瑣事煩惱。
展示圖模型圖:
樣板房照片供參考:
極致戶型,完美高效
1臥室,52平方米,高效利用面積,寬敞格局,客廳和房間新加坡河景朝向,最便宜單位價格$174.4萬起,促銷價$161萬新幣起 (23樓)
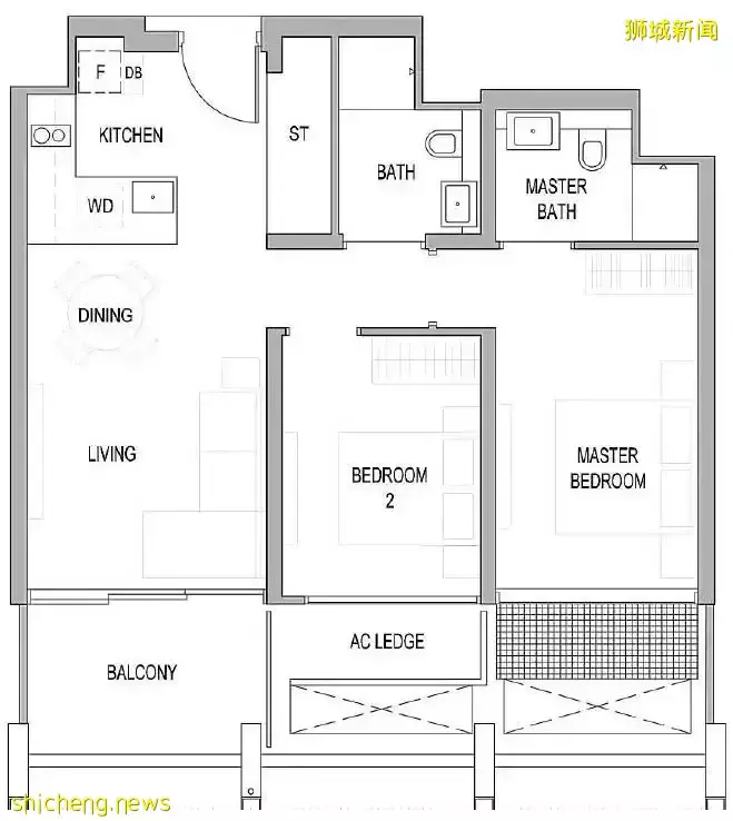
2臥室,76平方米,高效利用面積,寬敞格局,客廳和兩個房間都朝向新加坡河,還有其他款式2臥室戶型,最便宜單位價格$241.5萬起,促銷價$223.7萬新幣起
3臥室優質型,109平方米,帶封閉式廚房,連普通房都約10平方米,輕松放雙人床和床頭櫃,符合高端項目定位,U型廚房,面積高效利用,新加坡河景和濱海灣景觀,最便宜單位原價$307.3萬起,促銷價$285.2萬新幣起
3臥室+書房優質型,116平方米,帶封閉式廚房,每個房間面積大,輕松放雙人床和床頭櫃,符合高端項目定位,面積高效利用,最便宜單位價格$346.2萬起 (高樓)
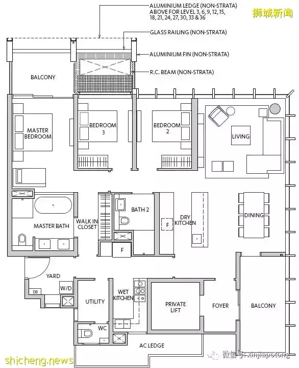
3臥室豪華型,159平方米,廚房分幹濕兩區,每個房間面積大,輕松放雙人床和床頭櫃,主臥衛生間帶浴缸,符合高端項目定位,私人電梯直接入戶,最便宜單位價格$472.6萬起,促銷價$430萬新幣起
3臥室豪華型,140平方米,帶私人電梯直接入戶,大平層設計,主臥帶浴缸,大客廳可以看270度美景,享受漂亮新加坡河景和烏節路景觀,最便宜單位價格$427.4萬起,促銷價$400萬新幣起
3臥室豪華型,170平方米,帶私人電梯直接入戶,廚房分幹濕兩區,大平層設計,主臥帶浴缸,大客廳可以看270度美景,享受漂亮新加坡河景和烏節路景觀
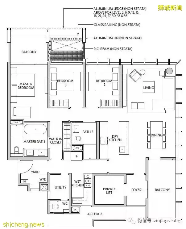
4臥室豪華型,186平方米,樣板房戶型,帶私人電梯直接入戶,廚房分幹濕兩區,大平層設計,大客廳可以看270度美景,享受漂亮新加坡河景和濱海灣景觀,最便宜單位價格$566.6萬起,促銷價$533.1萬新幣起(4樓單位)
附注:以看房時選的單位價格爲准







































