Rymden 77(D15),東海岸的永久地契期房公寓,即將交房,合約交房日期2022年12月。一棟5層的建築,總共31個單位,28個停車位,1個殘疾人停車位。走路可到兩個地鐵站(景萬岸,友諾士)。
智能家居系統。
東部地産需求持續升溫,升值潛力巨大。
永久地契越來越稀有。
周圍名校林立。
駕車少過20分鍾可到樟宜國際機場。
駕車15分鍾可到CBD。
地理位置:
周圍小學:
小區平面圖:
小區效果圖:
樣板房照片:
管理費(預計):
房型分布及樓層規劃:
房型圖及價錢:
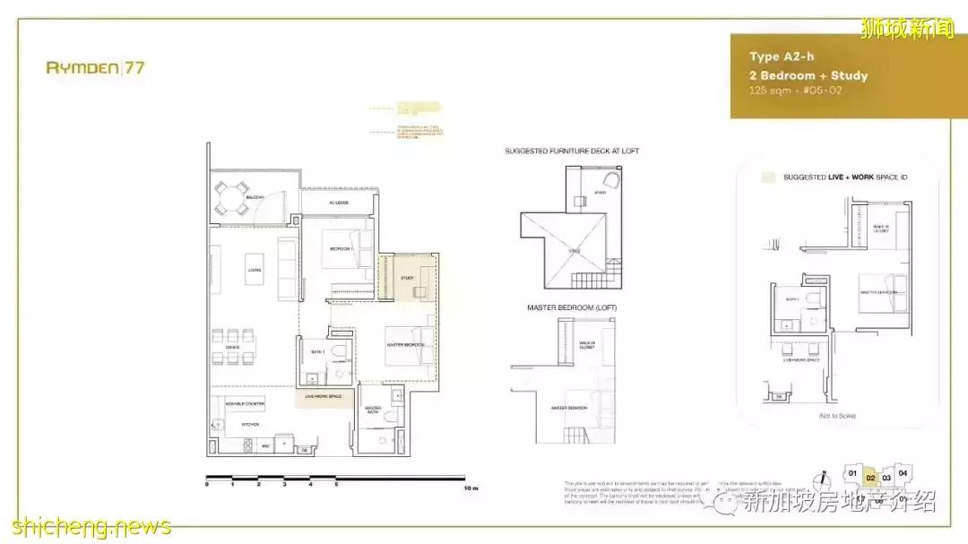
2房加書房,904 平方英尺(84 平方米) 到 1346 平方英尺(125 平方米),新幣 1,616,700 起。
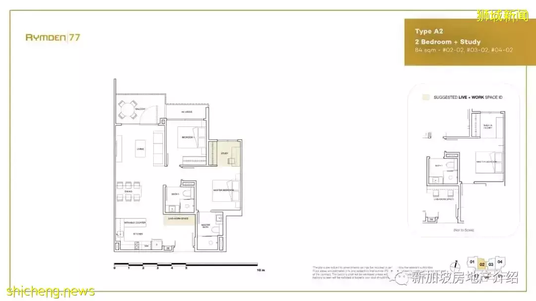
房型圖:
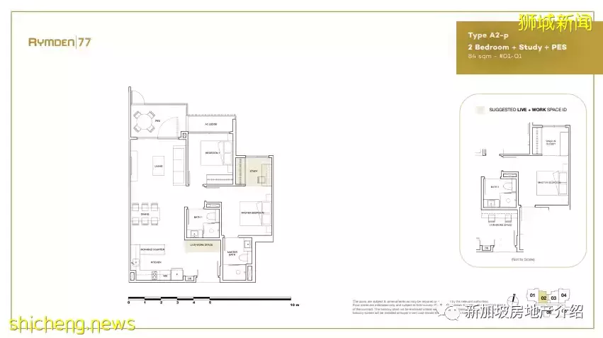
2房加書房一樓,904 平方英尺(84 平方米),新幣 1,639,200 起。
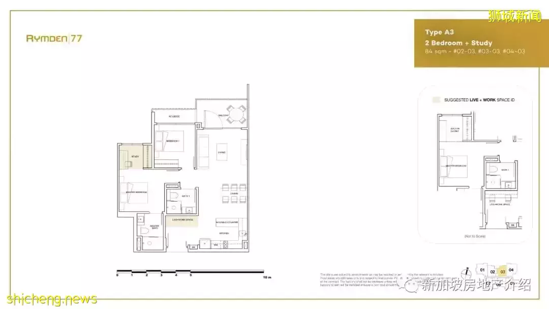
房型圖:
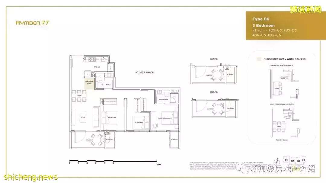
3房,980 平方英尺(91 平方米),新幣 1,708,600 起。
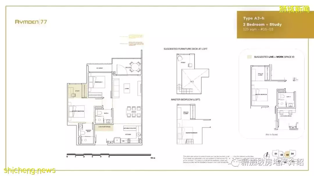
房型圖:
3房雙鑰匙,售罄。
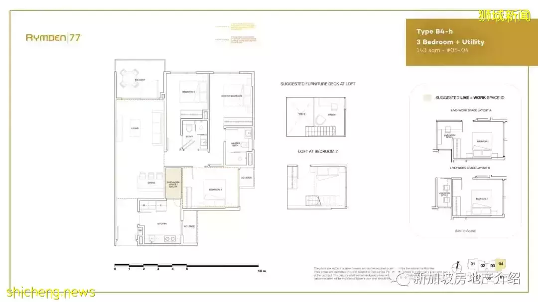
3房加儲藏室,1539 平方英尺(143 平方米),新幣 2,270,300 起。
房型圖:
3房加儲藏室一樓,售罄。
4房雙鑰匙閣樓,售罄。
4房加儲藏室閣樓,售罄。
4房加儲藏室,售罄。
所有房型單位可能隨時售罄。所有房價可能隨時調整而沒有通知,由開發商決定。






















