Haus On Handy(D09),總統府旁邊的公寓期房,學區房,2022年底即將交房。小區裏面有曆史建築,小區是曆史與現代的完美結合。
兩棟分別是9層和12層的建築,188個單位。合約交房日期2023年7月31日。113個停車位,3個殘疾人停車位。
智能家居系統。
走路兩分鍾到達獅城大廈(Plaza Singapora)和國泰影院(The Cathay)。開車3到5分鍾到達烏節中心和索美塞313。
兩個明校的學區房。
地理位置:
周圍小學:
小區平面圖:
小區效果圖:
樣板房照片:
房型分布及樓層規劃:
房型圖及價錢:
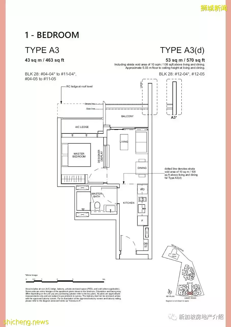
1房,420 平方英尺(39 平方米) 到 570 平方英尺(53 平方米),新幣 1,467,000 起。
房型圖:
1房加書房,517 平方英尺(48 平方米) 到 624 平方英尺(58 平方米),新幣 1,348,000 起。
房型圖:
2房,592 平方英尺(55 平方米) 到 764 平方英尺(71 平方米),新幣 1,564,000 起。
房型圖:
2房加書房,678 平方英尺(63 平方米) 到 926 平方英尺(86 平方米),新幣 1,800,000 起。
房型圖:
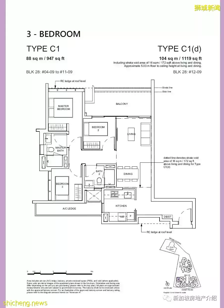
3房,947 平方英尺(88 平方米) 到 1141 平方英尺(106 平方米),新幣 2,591,000 起。
房型圖:
3房雙鑰匙,980 平方英尺(91 平方米),新幣 2,710,000 起。
房型圖:
所有房型單位可能隨時售罄。所有房價可能隨時調整而沒有通知,由開發商決定。













































