世界知名富豪總想要“會當淩絕頂,一覽衆山小”,享受世界在他們腳下的體驗,頂層豪宅由此受到他們的鍾愛。
阿裏巴巴創辦人馬蔡崇信在紐約曼哈頓,以1.88億美元(約合人民幣12.5億)的價格買下中央公園頂層豪宅;韓國男女神玄彬、孫藝珍,48億韓元(約合人民幣2.3億)買下頂層別墅公寓當愛巢;一位亞洲神秘富豪,豪擲2,140萬英鎊(約合人民幣2億)在倫敦買下7套頂層公寓……
全球的頂層豪宅都在外售,新加坡的頂層豪宅更是受到很多富豪的歡迎!
迄今爲止,新加坡創下銷售記錄的一個頂層豪宅,是位于市中心:丹戎巴葛金融區的華利世家樓盤的頂層豪華公寓。以6200萬新幣(約合人民幣3億)的價格被戴森(Dyson)的創始人詹姆士·戴森(James Dyson)爵士買下!
新加坡的頂層豪宅,又有著怎樣的魅力能吸引到富豪們的購買?
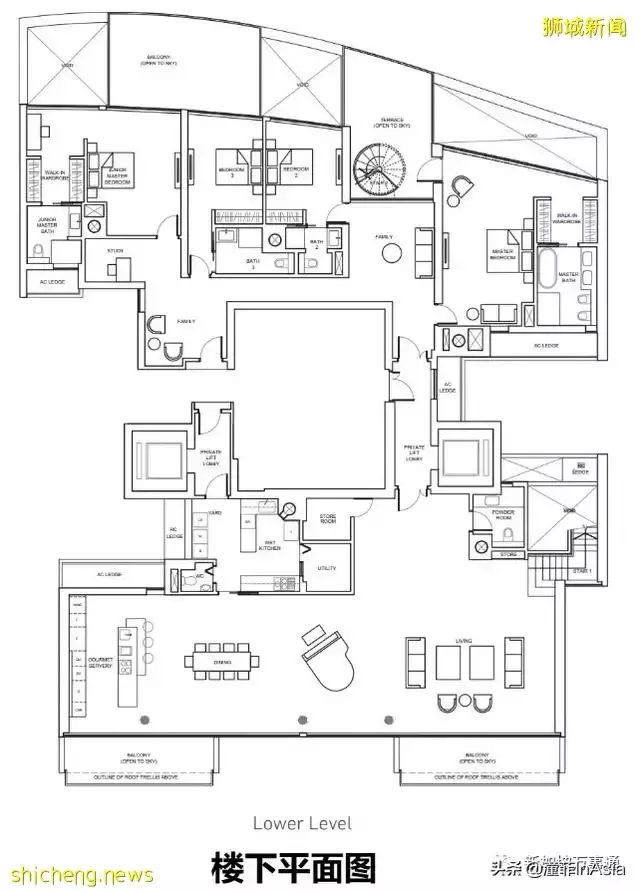
新加坡常見頂樓豪宅,
大平層與雙層複式簡析
新加坡公寓市場常見的頂樓豪宅(penthouse),顧名思義,是建在公寓住宅樓最高層的豪華大戶型單位,通常分爲兩種。
一種是大平層頂樓豪宅。
一種是雙層複式頂樓豪宅。
大平層頂樓豪宅,擁有優越的平層大面積,而且基本都是室內實用面積。
大平層頂樓豪宅的戶型圖,看起來是下圖這樣的。
通常是四室一廳+工人房的戶型打底,五臥六臥也很普遍,適合大家庭居住。
雙層複式頂樓豪宅,擁有樓上樓下兩層,面積通常比大平層戶型更大。
室內有樓梯連接上下兩層,通常二樓會設計私人泳池,水力按摩池,大露台等私人戶外設施。
雙層複式頂層豪宅的戶型圖,看起來是下圖這樣的。
頂層豪宅共有的特性,
優越視野、獨立隱私、專屬設施
什麽是頂層豪宅共同擁有的特性呢。
第一,居高臨下,一覽衆山小的優越視野。
新加坡高樓林立,頂層豪宅通常會在二十樓以上,占據整個公寓樓盤最好的視野。四十樓以上的頂層豪宅也很常見。
頂層豪宅的一大優勢是視野開闊,景觀優美。
第二,上佳的獨立隱私。
頂層豪宅單位面積很大,一層樓通常只有一戶,不會超過兩戶。再加上私人電梯入戶是頂層豪宅單位的基本配置。
入住頂層豪宅單位,可以很大程度上保證業主的獨立隱私。
第三,專屬的私家公寓設施。
有一些公寓設計和設施是只有頂層豪宅單位附帶的。
比如說:私人泳池,戶外露台。常見于雙層複式頂層豪宅的二樓。
頂層露台
私人泳池
這些特點,造成了公寓市場上頂層豪宅(penthouse)的獨特性。
頂層豪宅的價錢不便宜,往往是一個樓盤裏面賣得最貴的單位。但住宅這種特殊的商品,除了價錢以外,還有很多考慮因素。
這就是青菜蘿蔔,各有所愛。
好比新加坡市中心:丹戎巴葛金融區的華利世家樓盤的超級頂層豪華公寓。
位于62-64樓的頂層豪宅公寓,上下三層複式,被稱爲‘空中別墅’,擁有私人泳池,泳池甲板,按摩浴池,懸挂式陽台等奢華設施,榮列全球十大豪宅第九。
下面的文章內容,讓我們盤點幾個市場上不同類型的頂層豪宅。
新加坡頂層豪宅,Sky Everton
關鍵詞:市中心金融區,無遮擋海景,永久地契。
Sky Everton矗立于新加坡南部的丹戎巴葛金融中心區域內(Tanjong pagar),具體位于Everton Road。
濱海灣金融新區,珊頓道金融區,萊佛士CBD區等新加坡核心區域,與Sky Everton樓盤觸手可及。
歐南園地鐵轉換站、100AM購物中心和新建的丹戎巴葛商場,近在咫尺。
位于南部金融區中心的Sky Everton,擁有永久地契,設計興建一座36層的摩天高樓,總共262個豪華公寓單位,樓層高達161.5米,全部南北朝向。
五樓及以下樓層設計爲停車場和公共活動區,六層以上部分才是住宅樓。
從室內遠眺濱海灣,風景獨好。
Sky Everton小區擁有多達60種公寓設施,分成四大主題,網球場,冷泉SPA,家庭大草坪,兒童遊樂場,高樓的天際吧台,星光夜餐等衆多精彩設施。
五臥+工人房大平層頂樓豪宅, 位于最高的36層頂樓。
客廳和主臥挑高空間,廚房幹濕分區,面積1819平方尺(169平米)。
頂樓豪宅單位只剩兩間,定價571萬7千新幣。
值得特別一提的是收于眼底的海景。
Sky Everton這個樓盤,是目前市場上現有的,僅有的一處擁有無遮擋海景的永久新盤。
新加坡頂層豪宅,3 Cuscaden
關鍵詞:烏節路繁華商業區,永久地契,即將建成。
位于繁華烏節路商業區中心的3 Cuscaden豪宅公寓, 位于詩家董商城的斜對面,距離烏節路地鐵站和ION(愛雍)購物中心很近。地理位置優越。
擁有永久地契的3 Cuscaden, 采用現代獨棟摩天高樓設計,樓高23層,地下兩層車庫,一樓公寓設施,2樓至頂樓總共96個豪華公寓單位,即將在今年建成,無需等待,即可入住。
分布在7樓,14樓和頂樓的空中花園及無邊際泳池,美輪美奂。
頂層23樓,一梯兩戶,兩個三臥單位。
發展商預留了這兩個三臥單位,可以打通連接成一個超過兩百平米的六臥大平層豪宅。
如果兩間一起買下的話,發展商可以幫買家打通合並成一個大六臥戶型。
兩邊的客廳合並起來,成爲一個超大空間的客廳。
注意了,23樓的戶外設計了一個很大的公共花園,原本是開放給兩戶業主共用的。
如果兩個三臥打通成大六臥平層,那麽就相當于免費送了個私人戶外花園。
新加坡頂層豪宅,Marina One(濱海盛景)
關鍵詞:濱海灣金融核心區,大型綜合建築,已建成,四月火熱售賣。
位于濱海灣金融核心區的Marina One(濱海盛景),是很少見的集商場、寫字樓、公園、高級住宅樓于一體的全綜合大型高端樓盤,由新馬兩國聯合開發,是濱海灣區域當之無愧的大型建築,面向海灣,風景獨好。
Marina One于2017年底竣工。2018年1月15日,由新加坡總理李顯龍和馬來西亞總理納吉共同出席了Marina One的開幕典禮。
兩國總理把這個項目形容爲‘兩國的重要合作項目’以及‘世界金融新區的標志性建築’。
連接濱海灣金融區內的三處地鐵站,整體設計興建2棟甲級辦公樓,一座大型購物中心,一個“城市綠肺”生態公園,以及兩棟摩天高級住宅樓。
Marina One的住宅樓部分,命名爲:Marina One Residences(濱海盛景豪苑)。
Marina One Residences的位置毗鄰MBFC金融大樓,正對著濱海灣入海口,高樓單位可以直接欣賞濱海灣絢麗夜景。
擁有99年地契的Marina One商住綜合樓盤,整體建築面積超過360萬平方英尺。
包括了兩棟30層高的甲級辦公樓盤,超過14萬英尺面積的大型零售餐飲店區,兩棟34層高的摩天高級公寓樓,以及位于高樓建築中央,超過6000平米面積的綠蔭公園。
整體設計诠釋了新加坡向來被贊譽的【花園中的城市】生態系統模式。
濱海盛景豪苑住宅樓,由34層高的兩棟摩天公寓樓連接而成,樓盤已經建成,購買即可入住。
高樓海景一望無際,心曠神怡。
小區內設計了大量的公寓設施,包括奧林匹克標准尺寸的泳池,占地達200平米的大型健身房,SPA池,兒童遊戲場地,休憩花園,私人會所等多種設施。
新加坡頂層豪宅,Juniper Hill(柏傲景)
關鍵詞:武吉知馬,名校學區,永久地契,即將建成。
Juniper Hill樓盤的具體位置,在武吉知馬區域 (Bukit Timah) 的有文路(Ewe Boon Road)。
有文路是一條與武吉知馬路平行的安靜小路,附近是大片的高級私宅區和有地別墅。
大名鼎鼎的烏節路商業區,距離Juniper Hill樓盤比肩而立。
新加坡世界遺産:新加坡植物園,同樣近在咫尺,一站地鐵即可到達。
繁華都市,自然美景,都在住家附近。
濱海市區線的史蒂芬地鐵站(Stevens),距離Juniper Hill一步之遙。
湯申-東海岸地鐵線建成後,史蒂芬站將成爲兩條地鐵線的轉換樞紐。
Juniper Hill樓盤位于武吉知馬,周圍名校林立。
Juniper Hill公寓周邊,就有四所知名學府。
英華小學(ACS Primary,男校)是本地九所GEP學校之一。
新加坡女子學校(SGCS) 是本地排名靠前的女子小學。
本地享有盛名的萊佛士女子中學和聖約瑟書院,同樣位于Juniper Hill附近。
擁有永久地契的Juniper Hill公寓,占地約5600平米。
小區內設計興建獨棟12層住宅樓建築,總共115個精品公寓單位,即將在本季度建成完工,無需等待,即可入住。
四臥+書房+儲藏間大平層頂樓豪宅, 位于最高的12層頂樓。
客廳和步入式衣帽間,廚房幹濕分區。
面積1970平方尺(183平米),發展商定價606萬8千新幣。
四臥大平層只此一間。
Juniper Hill即將建成,無需等候即可入住。
目前的私宅市場裏,像Juniper Hill樓盤集合了‘黃金郵區,永久地契,名校學區,靠近地鐵’的四合一,還是不多見的。




































