聖淘沙灣是聖淘沙島上獨一無二的豪華海濱生活社區,它結合了海景和度假區的生活風貌,地理位置優越。在全世界所有的金融城市不論是香港,東京,紐約,倫敦,再也找不到一個融入大海、遊艇、高爾夫球場于一身的世外桃源。難能可貴的是,在這裏竟然還能快速連接島金融中心、商業區、還有娛樂中心,因此這裏的房産不止是新加坡人夢寐以求的理想家園,更是許多海外人士慕名而至的超級豪華住宅區。
項目介紹 Cape Royale禦豐軒正是位于這個新加坡最尊貴的濱海高尚住宅區,D04郵區聖淘沙島內。該項目是由新加坡知名房地産發展商和美集團(Ho Bee Group)開發。
禦豐軒是聖淘沙島上最高的住宅項目,是由9棟20層樓高的獨特建築巧妙排列而成,總面積約231,676.8平方英尺,共擁有302間豪華海景住宅單位。該項目因坐落于聖淘沙灣和碼頭的水路入口,使其形成了一個獨特的天際線,讓居民可以享受獨特的集住宅、商業和碼頭設施于一體的濱海度假生活風貌,也能欣賞南中國海、南群島、丹宗高爾夫球場和城市天際線的壯麗景色。
項目風格 Cape Royale禦豐軒是新加坡聖淘沙灣專屬濱水住宅區的巅峰之作。其建築的設計靈感來自于神秘而迷人的海洋世界,運用9棟不規則高度的獨特雕塑塔樓圍繞著主題設計的景觀巧妙排列,並將大量的水景把建築與大海連接起來,就像熙熙攘攘的珊瑚礁群落裏的氣泡珊瑚般,美麗又獨特的存在。
該項目整體景觀都體現得非常和諧,且每座塔樓都設有自己的半私人花園。根據其位置和可用空間不同,每個花園的範圍從野餐草坪到反光雕塑池塘不等。在這裏,珊瑚啓發的亭子和雕塑隨處可見,使整體景觀豐富多彩,爲居民帶來更多活力。
整體景觀使用的顔色以藍色、綠色、白色及灰色爲主,使Cape Royale禦豐軒把大海、沙灘、天空與植物的所有大自然環境顔色完整的連接起來。
此外,該項目每座樓塔的基座周圍都是巨大的氣泡狀花盆,綠色區域則充當了緩沖地帶,保護住宅居民免受公共通道的影響。而塔樓的間距和方向都是經過特別設計,以利用海洋景觀,最大限度地強化隱私性及優化其交叉通風效果。
地理位置
Cape Royale禦豐軒坐落于聖淘沙灣,其獨特的綜合碼頭生活風貌,不僅是新加坡最理想的位置,也是世界上最高檔的住宅區之一。
其周圍享有許多盛名的休閑勝地,包括聖淘沙名勝世界,新加坡環球影城,ONE°15遊艇俱樂部,冒險灣水上樂園和S.E.A水族館等地方,讓您度假與娛樂生活同時擁有!
聖淘沙的出入口(Sentosa Gateway)將禦豐軒與西海岸、中央和泛島等主要高速公路連接起來,讓您在喧嘩城市與甯靜的度假村間來去自如。該項目前往新加坡最大且包羅萬象的購物中心–怡豐城(VivoCity)僅需10分鍾車程的距離,而新加坡樟宜國際機場也僅需半小時車程即可抵達,故對于需經常出行或外出公幹的您也會是不二之選。
周邊設施
幼兒園
Islander Pre-School – 6min(s)
Del-Care Edu Centre Pte. Ltd. – 13min(s)
Carpe Diem @ Spottiswoode Park – 13mins(s)
小學
Cantonment Primary School – 13min(s)
CHIJ(Kellock) – 13mins(s)
中學
CHIJ St. Theresa’s Convent – 12mins(s)
Outram Secondary School – 17mins(s)
初級學院
Catholic Junior College – 26mins(s)
國際學校
EtonHouse International School Sentosa – 5min(s)
購物
VivoCity – 9min(s)
Harbourfront Centre – 10mins(s)
3室
A1戶型 3室 1,722平方英尺/160平方米
3室
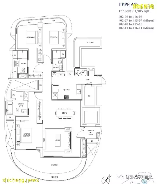
A2戶型 3室 1,905平方英尺/177平方米
3室
A3戶型 3室 1,679平方英尺/156平方米
3室(Penthouse)
P1戶型 3室 2,971平方英尺/276平方米
3室(Penthouse)
P3戶型 3室 2,939平方英尺/273平方米
3室+書房(Penthouse)
P2戶型 3室 3,391平方英尺/315平方米
4室
B1戶型 4室 2,508平方英尺/233平方米
4室
B2戶型 4室 2,530平方英尺/235平方米
4室(Penthouse)
P4戶型 4室 4,629平方英尺/430平方米
4室(Penthouse)
P4a戶型 4室 4,672平方英尺/434平方米
Cape Royale禦豐軒因地點優越,讓住戶們都能享受到度假村的甯靜外也能快速通往市區。其優越的地理位置,無論是自住或投資都會是絕佳的選擇。


















