AMO絕對是屬于萬衆矚目那一類的新盤,自從這塊地賣掉之後,無數買家就在等著它開盤。
三家巨頭,華業集團UOL、新加坡置業SLG和慶隆集團KLC聯合開發,無論是設計還是質量都令人放心。
項目速覽:
兩棟樓25層高,372間單位,坐落于香格裏拉分區
步行2分鍾到皮爾斯蓄水池和碧山-宏茂橋公園
步行4分鍾到Mayflower地鐵站
聖尼格拉女小和愛同小學一公裏內
兩臥到五臥戶型,沒有一臥單位
項目位于碧山-宏茂橋公園旁邊,占地面積爲12679.4平方米,包括兩棟高25層的住宅樓,總共372個單位。
主打自住學區房+自然宜居,所以項目沒有一臥戶型。
項目布局上充分考慮了視野的開闊性:
朝西北這一側面向的是別墅區,可以看到蓄水池:
東南這一側是碧山-宏茂橋公園,正在施工的是新的組屋,這個角落位置是個多層停車場,如果低樓層單位可能會被擋道一些視野:
項目的另一大特色是頂級學區房。
愛同小學是這一區最受歡迎的小學,和道南,崇福等名校一樣同屬福建會館旗下,是一所混合小學。如果家有一兒一女,那報這所小學可以一勞永逸。
CHIJ聖尼各拉女子小學是頂級名校,更有聯合中學優先錄取的優勢,非常適合有女孩的家庭。
一公裏內還有一所小學,宏茂橋小學。雖然不是名校,但教育質量還是可以的,非常適合PR家庭。
有層次的學校,可以滿足更廣泛買家的不同需求。
UOL的小區設計一直非常優秀,之前的Avenu south和Clavon都是證明,這次的AMO更上一層樓。
戶型上看,兩臥是最大的亮點,開盤有很大概率被搶光。
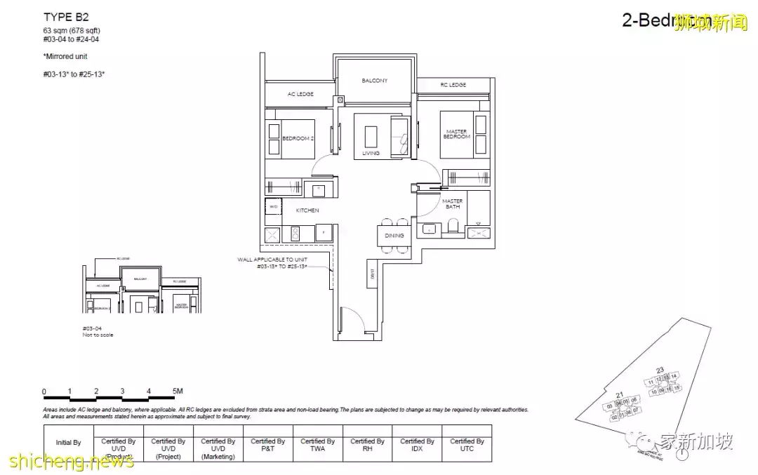
兩臥一衛,面積63平方米,啞鈴戶型,沒有在走廊上浪費太多面積,兩間臥室都很寬敞:
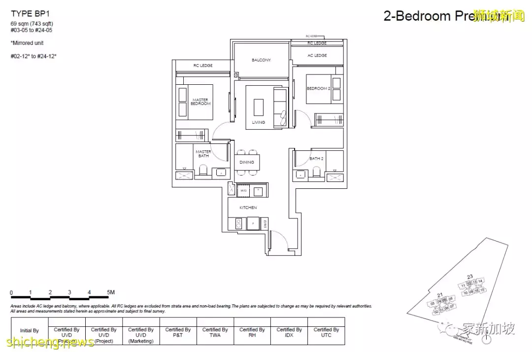
樣板房戶型,69平米的兩臥兩衛,同樣是啞鈴戶型。右側有一塊走廊面積,可以用來作爲儲藏室,也可以並入到次臥裏去增加臥室面積。
這個戶型極佳,無論是投資還是自住。
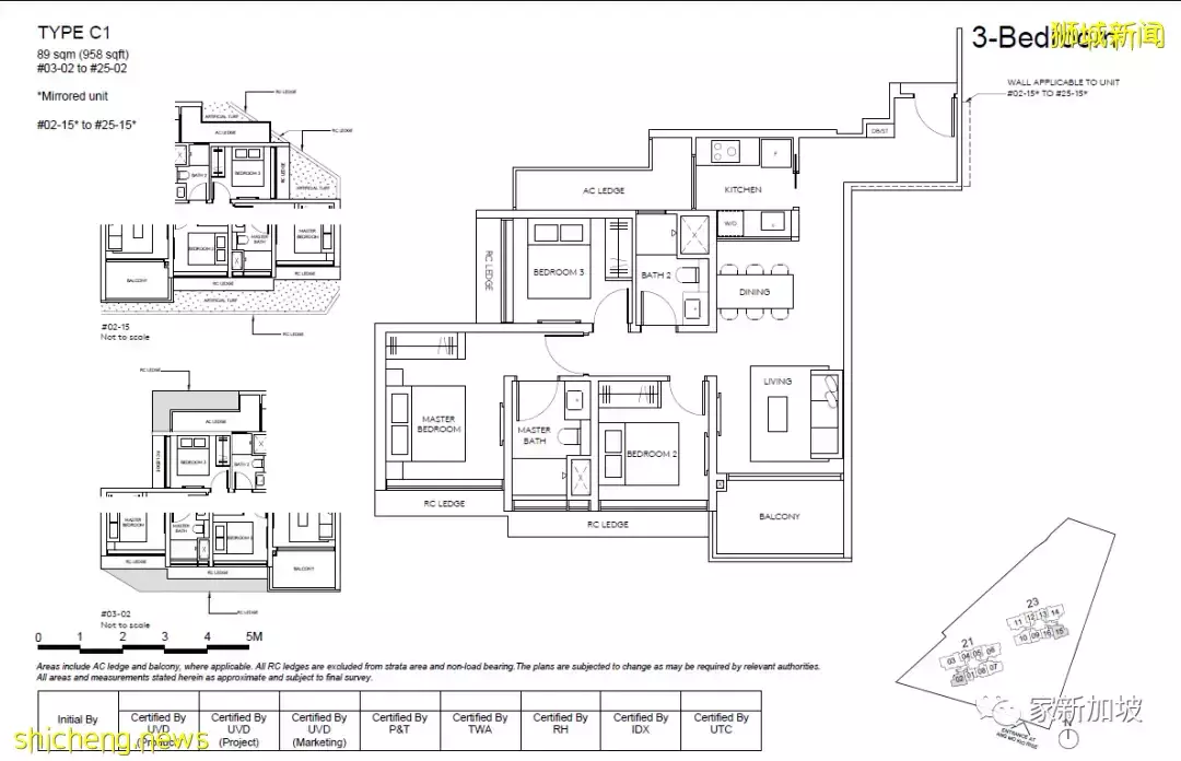
89平米的小三臥,保證了臥室面積,還做到了明廚明衛,實屬難得。
適合預算有限的家庭買家自住。
106平米的三臥+書房設計,內部的活動空間,尤其是廚房更加寬敞。書房的位置不太理想,不能和臥室連起來,適合有居家辦公需求的家庭。
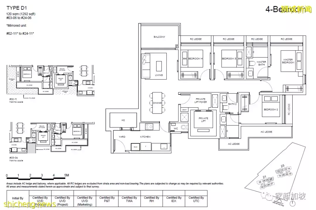
120平米的四臥,帶有私人電梯。雖然沒有氣派寬敞的寬廳,但是長廳本身大大減少了陽台面積,戶型效率高。四間臥室都很寬敞,尤其是第四間有了類似小主人房的概念。
這個戶型是本次最大的創新,如果價格合理的話,會很受歡迎。
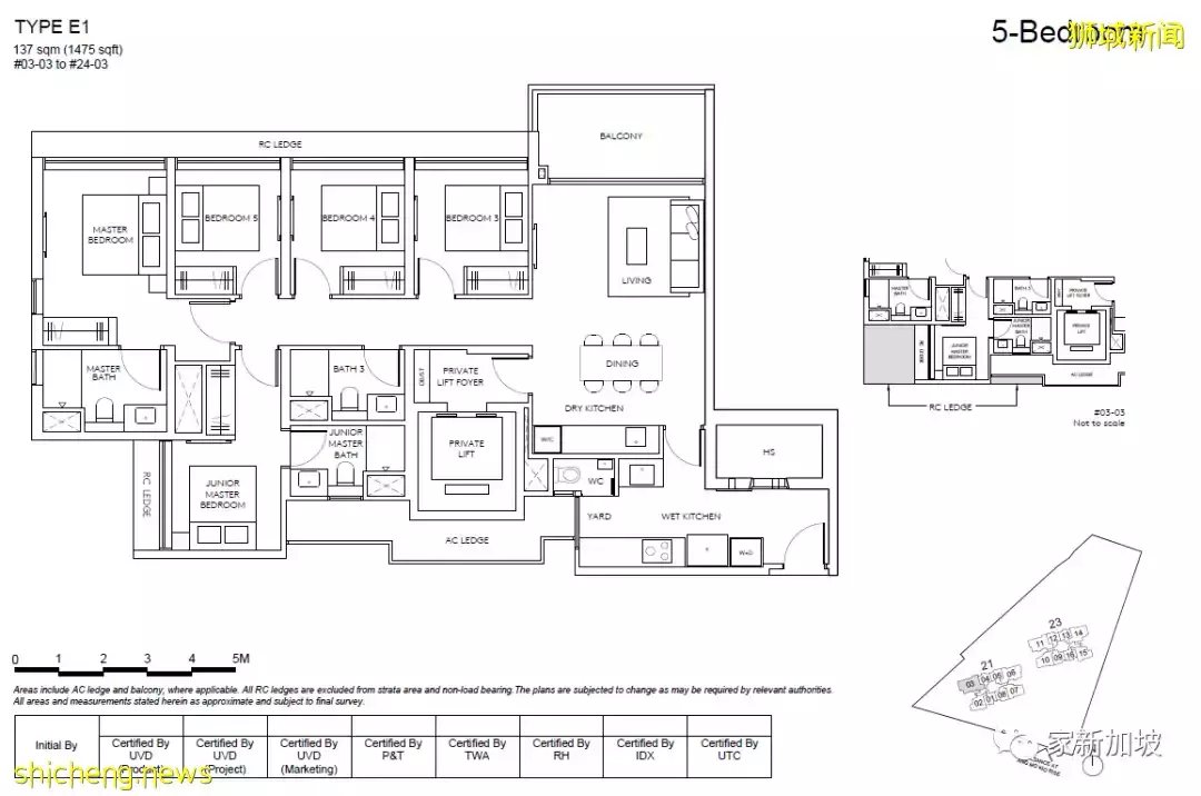
137平米的五臥,同樣帶有私人電梯。加寬的長廳能滿足更多人的交流聚會需求。小主人房是加分項,剩下三間普通房共用一個廁所沒問題。
除此之外還有三間200平米以上的頂層單位,超大戶型,現在還沒有戶型圖出來。這種單位極具稀缺性,對生活質量有要求,同時經濟基礎也足夠的買家不要錯過。
優先預覽通道已經開通,感興趣的買家抓緊時間報名,現在已經有超過2000人預約了。
















