享受大自然的原始之美,
追尋心靈的甯靜體驗,
80%的山水和園景面積,
《名彙庭苑 Midtown Modern》
讓您在繁華城市中找到低密度的安身之所!
前言 現代城市人生活在一個非常繁忙、充滿挑戰的時代,而”家”是一個能放慢腳步和休息充電的地方。在能享受繁華生活及寸土寸金的新加坡中央商業區,能找到安靜、悠閑、放松的大自然空間,是許多人心中所向往的理想生活方式,也是渴望的安居之所。
現代城市人生活在一個非常繁忙、充滿挑戰的時代,而”家”是一個能放慢腳步和休息充電的地方。在能享受繁華生活及寸土寸金的新加坡中央商業區,能找到安靜、悠閑、放松的大自然空間,是許多人心中所向往的理想生活方式,也是渴望的安居之所。
作爲亞洲最佳開發商的國浩集團(Guoco group),以打造繁華都市的綠洲生活爲主旨,在新加坡開發了多個知名項目,其中包含華利世家(wallich Residence)、濱海名彙(Midtown Bay)及美雅豪苑(Meyer Mansion)等豪華住宅項目都廣受好評。而我們今天爲大家介紹的,便是該集團在中央商務區內所打造的城市綠洲豪宅項目-名彙庭苑 Midtown Modern。
項目介紹
名彙庭苑 Midtown Modern坐落于第7郵區的武吉士地鐵轉換站正上方,是國浩集團在該區域發展的第二個綜合項目-國浩時代城二期(Guoco Midtown)的一部分。該項目與國浩時代城一期相連,而兩個項目的結合,將國浩時代城形成一個占地3.2公頃(約35萬平方英尺),集商場、住家、辦公于一身的的龐大城市綜合體項目。
該項目是由2棟30層高的建築所組成,除了第一層與第二層分別屬于商業用途及停車場外,第三層以上皆爲名彙庭苑的城市綠洲豪宅項目,共有558個私宅單位。戶型分布多元,既有可供投資的一房到兩房小戶型單位,也有適合家庭自住的三臥、四臥及五臥複式等大戶型單位,以滿足現代投資者和家庭住戶等多方面需求。
項目風格
Midtown Modern名彙庭苑是由新加坡知名設計師及四屆總統設計獎得主葉潤康所設計,該設計是采用“城市綠洲”的大自然設計概念,營造出如同度假酒店般的舒適生活方式。而整個項目的綠化觀景區面積超過1公頃,其中包括10多個主題花園、大草坪、池塘等80%的山水和園景空間,讓所有住戶在繁忙生活中能放松身心,也讓住戶們可以體驗到四季的變換,真正的把森林帶到城市最中央。
而名彙庭苑是國浩時代城綜合項目的一部分,該項目除了包括濱海名彙(Midtown Bay)與名彙庭苑(Midtown Modern)兩大豪華公寓外,還集結了一棟30層的甲級辦公大樓、三個概念零售區和一棟5層樓高的時代城會所(Network Hub)大樓。而龐大綜合項目的便捷完善設施,不僅爲該區域注入嶄新活力,周圍資源也將不斷彙集于此,爲項目帶來龐大的投資效益。
該項目也設有網球場、50米泳池、超大面積花園景觀等多元的完善設施供居民使用,讓住戶在項目內即可享受一整天的休閑時光。且每個單位都擁有巨幅落地窗及寬闊觀景台,讓住戶們不管在白天還是晝夜,都可把小區綠景及濱海灣(Marina Bay)、烏節路(Orchard)等絢麗風景,一覽無遺的盡收眼底。
地理位置
Midtown Modern 名彙庭苑作爲武吉士地鐵轉換站(Bugis MRT)正上方項目,讓所有居民從轉換站踏上扶梯,即可直達名彙庭苑的大門。項目底層四通八達,融彙貫通,通往新達城Suntec City、Bugis Junction購物中心、DUO等辦公大樓及商場僅是一步之遙,且讓所有住戶免受日曬雨淋等困擾。而該鐵站營運東西線(East West Line)和濱海市區線(Downtown Line)兩條主要的地鐵線,除了方便工作人士上班之外,學生族群皆可乘搭地鐵往返于家門與學校間,讓一切生活只在彈指之間。
名彙庭苑擁有非常齊全的交通網絡,其緊臨東海岸公園大道(ECP),中央高速公路(CTE)和加冷-巴耶利峇高速公路(KPE)等三條高速公路,驅車前往中央商區(CBD)及新加坡最大購物中心-烏節路(Orchard)等地區只需10分鍾內就可抵達,而樟宜機場也僅需15分鍾內車程。其優越的地理位置與便利的交通,讓所有居民能夠輕而易舉的在工作與生活中來回穿梭。
此外,武吉士作爲新加坡曆史悠久的文化區域,也是中央商業區,向來是辦公、旅遊、休閑和藝術文化的首選地區。而近年來的翻新重建,使得許多摩天大樓宛如雨後春筍般湧現,且也吸引了更多的國企公司陸續進駐,其中包括支付公司龍頭萬事達(Mastercard)及美國數據分析公司Tableau等國企公司都彙集于此。隨著國企的進駐,將會帶來更多的居住需求,也爲該項目帶來極高的投資潛力。
周邊設施
地鐵站
武吉士地鐵轉換站(0.1公裏)
小學
史丹福小學(0.6公裏)
聖瑪格烈小學(1.3公裏)
花苑小學(1.6公裏)
中學
新加坡藝術學院(0.9公裏)
初級學院
公教初級學院(3.7公裏)
大學
新加坡拉斯維加斯內華達大學(0.3公裏)
南洋藝術學院(0.5公裏)
新加坡管理大學(0.6公裏)
拉薩爾藝術學院(0.7公裏)
莎瑞管理學(1.5公裏)
芝加哥大學 – 布斯商學院(1.5公裏)
南洋現代管理學院(1.5公裏)
國際學校
博偉國際教育學院(1.8公裏)
商場
白沙浮廣場(0.2公裏)
雙景坊(DUO Galleria)(0.2公裏)
Bugis+商場 (0.3公裏)
武吉士村 (0.3公裏)
新達城購物商場(0.4公裏)
福祿壽大廈(0.4公裏)
萊佛士城購物中心(0.6公裏)
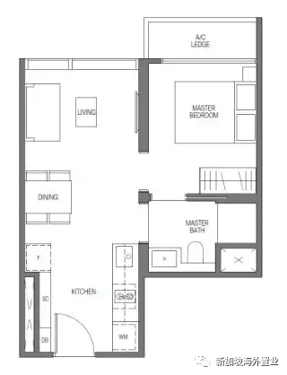
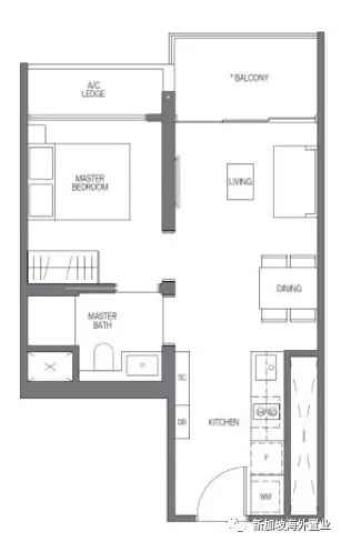
現有戶型
1室
A1戶型: 38平方米 / 409平方尺
新幣 S$1,487,000 起
1室
A1-R戶型: 38平方米 / 409平方尺
新幣 S$1,611,000 起
1室
A2-R戶型: 44平方米 / 474平方尺
新幣 S$1,678,000 起
1室
A3-R戶型: 44平方米 / 474平方尺
新幣 S$1,689,000 起
3室
C1戶型: 84平方米 / 904平方尺
新幣 S$2,397,000 起
3室
C1-R戶型: 84平方米 / 904平方尺
新幣 S$2,877,000 起
3室
C2-R戶型: 99平方米 / 1,066平方尺
新幣 S$3,147,000 起
4室
D1(PL)戶型: 134平方米 / 1,442平方尺
新幣 S$3,825,360 起
4室
D1-G(PL)戶型: 133平方米 / 1,432平方尺
新幣 S$3,938,000 起
4室
D2(PL)戶型: 136平方米 / 1,464平方尺
新幣 S$3,722,400 起
4室
D2-G(PL)戶型: 134平方米 / 1,442平方尺
新幣 S$3,856,000 起
4室
D2-R(PL)戶型: 136平方米 / 1,464平方尺
新幣 S$4,679,000 起
4室Premium
D3P(PL)戶型: 168平方米 / 1,808平方尺
新幣 S$4,522,320 起
4室Premium
D3P-G(PL)戶型: 161平方米 / 1,733平方尺
新幣 S$4,843,000 起
5室雙層空中洋房
後疫情時代,住家和工作變得更緊密,人們對于居住空間的的需求也隨之增加,而市面上的大戶型所剩無幾,以致任何大戶型一到市場就被搶購一空。而國浩集團作爲亞洲最佳開發商,聽從市場所需,也獨具匠心的將名彙庭苑打造出了六套5臥室的空中別墅,以滿足市場所需。
該項目的六套空中別墅,分別將整體生活空間一分爲二,分割爲上下兩層獨立樓層空間。讓所有家庭成員都有自己的獨立空間外,也能和氣融融的居住在一起互不打擾。一套住宅即可一站式滿足您的工作、娛樂、休閑等所有生活所需,讓您暢享生活。
5室雙層空中洋房
D3P(PL)戶型: 336平方米 / 3,616平方尺
新幣 S$15,750,000 起
5室雙層空中洋房
D3P(PL)戶型: 336平方米 / 3,616平方尺
新幣 S$15,500,000 起
名彙庭苑作爲最龐大城市綜合項目國浩時代城的一部分,其優異的地理位置,不僅將周圍的資源凝聚于此,且周圍林立的辦公大樓也爲該區域帶來龐大的租客族群。而作爲城市綠洲住宅項目的它,也把整個大自然森林帶到城市最中央,爲所有住戶打造出一個最舒適、最宜居的環境,故該項目不僅具有極高的投資潛力,對于家庭自住也是最合適不過的選擇!
置業顧問 Cathy 李小姐



























