最近路過西海岸時,被一塊廣告牌吸引,仔細一看原來是一個叫做河景苑(Parc Riviera)的新項目要開盤了。目前得到的參考價格爲12xx新幣每平方尺!熟悉金文泰西海岸一帶的老司機們肯定都知道,在金文泰地區這個價格可謂相當的優惠!
河景苑的地點位于金文泰市鎮,屬于一個非常成熟的社區。具體位于AYE與Pandan resivor交界處,金文泰地鐵站和裕廊東地鐵站之間。附近就是西海岸公園,俯瞰班丹蓄水池遠眺大海。
從位置來看如果開車的話因爲靠近AYE驅車到達開往市區將會非常便利。新加坡政府未來的發點對象裕廊商業區也近在咫尺,相信該區域會因此而獲得更大升值空間。西海岸地區名校林立,從新加坡國立大學到南華小學到日本中學再到到英華初院,教育資源豐富。無論是家有學生還是出租相信都有一定的保障。
雖然該項目所在位置去到最近的地鐵站——金文泰需要乘坐巴士,但是西海岸地區在不遠的未來即將開通軌道交通,升值空間也是被看好的。
新加坡裕廊一帶,也一直是新加坡西部地區,政府未來發展藍圖中的重心。
下面我們走進小區內部看看。
和新加坡所有的公寓一樣,小區內綠化很贊。健身房、50米遊泳池、BBQ、遊樂設施等,一個都不少,生活質量節節高。
河景苑一共有752個單位,99年地契,官方交房時間是2020年。項目爲兩棟36層的高樓,其中一樓的單位層高高達4.5米,頂層的層高也是高達4.3米,中間其他樓層層高2.9米。4.5米層高,做loft是非常充足的,非常適合有loft情節的年輕人們。37樓還設置有觀景天台。
下面來看戶型圖:
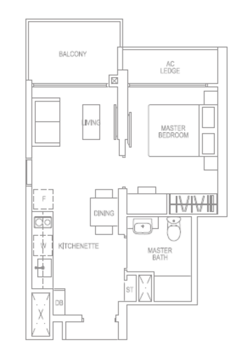
▼43平米(463平方尺)的1臥室戶型
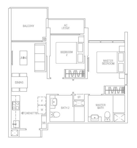
▼56平米(603平方尺)的2臥室戶型
▼60平米(646平方尺)的2臥室戶型:(和前者的差別就在于多了一個廁所)
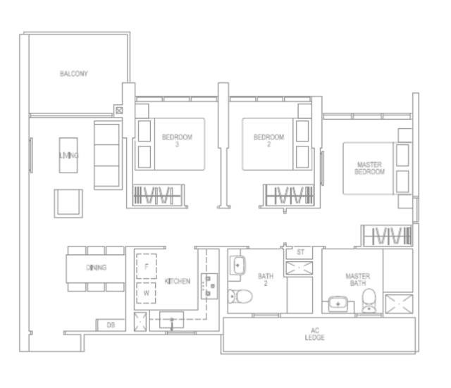
▼84平方米(906平方尺)的3臥室戶型:從3臥室開始就可以做封閉式廚房啦!
▼94平米(1012平方尺)的3臥室+儲藏室戶型
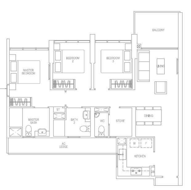
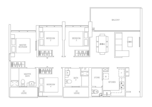
▼107平米(1152平方尺)的 4臥室戶型
此處劃重點,新加坡的公寓面積可都是實打實的套內面積哦!!沒有公攤的!(小編表示中國的房子公攤真是尼瑪巨大啊,一下子房子的20%-30%就沒掉了………)
並且新加坡的公寓不僅沒有公攤,而且全部是精裝修拎包入住標准的現房,冰箱空調洗衣機,地板衣櫃廚房甚至廁所都是裝修好的。
從戶型圖我們可以看到,項目的戶型都蠻方正的,利用率也都很好。還有一些其他戶型沒有全部列在這裏,有興趣的買家可加微信 xinjiapoyan6 預約去樣板房踩點咨詢詳情。
最後再次劃重點:西海岸的海景公寓,價格到底是多少呢?小編只能告訴你,目前放出來的吹風價竟然只要12XX新幣/平方尺起!!西海岸這個價錢的公寓真心實惠可以來一打有木有!!相信很多熟悉西海岸、喜歡西海岸的買家們,一定已經在准備首付款的路上了……















