簡介:
Luxus Hills Signature Collection位于28郵區的1 Luxus Hill Drive, Singapore 804805, 由知名開發商Singapore United Estates (Private) Ltd開發。Luxus Hills Signature Collection擁有永久産權,包括Intermediate Terrace, Corner Terrace, Semi戶型共78個單位。
新加坡郵區分布圖:
概況:
樓盤名稱:
Luxus Hills Signature Collection
開發商:
Singapore United Estates (Private) Ltd
産權:
永久産權
預計交鑰匙時間:
2022年
單位數量:
78
樓層數量:
起始總價:
新幣 S$
每平方英尺起始:
新幣 S$
豪景山(LUXUS HILLS)
萬國置業(Bukit Sembawang Estates Limited)推出的獨家定制的有地私宅系列
一生中最值得珍視的不是金銀錢財,而是美好生活。
時間、空間——可以說任何住宅區都無法充分擁有這兩大資源。
豪景山(Luxus Hills)——獨家定制的豪華有地私宅系列,爲您能享受充足的時間和空間而獨家打造。
999年地契供世代流傳,一個爲您家人提供寬敞生活空間的有地私宅。
一個屬于您的絕佳地址
一個世代享有的溫馨家園
真正的幸運並不僅是享有豪華棲身之所,還需要擁有能容納衆多家庭成員的寬敞場地。

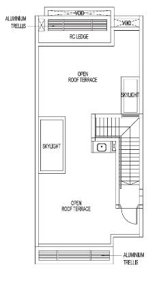
豪景山(Luxus Hills)住宅的核心亮點是令人歎爲觀止的、頂部帶天窗的雙層高天花板。住宅白天可以沐浴在自然陽光下,夜晚則有星空幕布包裹空間。
部分精選住宅擁有私人遊泳池,可以供您鍛煉或放松。
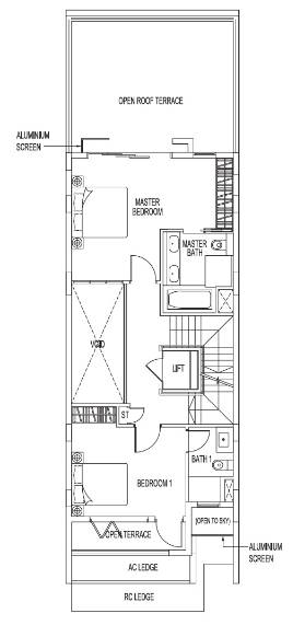
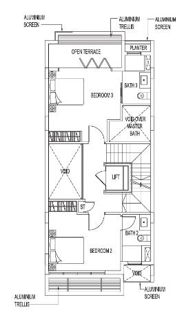
開闊的三層生活空間采用寬闊的比例和高效的功能布局。住宅擁有四到五間獨立臥室以保證您的專屬隱私,每個房間都寬敞到足以放置一張特大號床。
豪景山(Luxus Hills)的住宅不僅因爲擁有私密空間而備受珍視,也因是能增強家庭關系的紐帶而廣受推崇。高天花板的中庭可以用作溫馨的客廳和用餐區。寬敞放縱的陽台可以舉辦親密的雞尾酒晚會。開放式的露台歡迎您隨時享受露天晚餐。
擁有一個專屬于您的家庭地址,意味著您可以決定如何在您的土地上度過您的閑暇時光。在屋頂上享受城市農業生活? 或者在露台上練瑜伽? 奢華生活的選擇權掌握在您的手中。
獨家私宅始于優質建設,靈感生活源于生活品質。
細節體現奢華。精心設計的大型幹濕廚房准備的美食,即便是最簡單的餐點也能被提升至高端奢華場景。帝澤(De Dietrich)的優質家電讓每個住宅都擁有與生俱來的高品質生活。
每間浴室的所有衛生潔具或配件都經過精心挑選,彼此相得益彰。它們旨在爲您的每一個家庭成員提供別具一格的奢華和舒適。

新加坡綠色建築標志白金獎/超金獎
豪景山(Luxus Hills)的住宅從設計到建築,從地面到頂層,從內到外全都采用綠色標准。
高效節能
每套住宅配備的太陽能電池板都能自然地提高能源效率。利用儲存電力滿足您的所有家庭需求。
節水節能
雨水收集設計將循環水從高層輸送至底層開放區域。節約用水用以澆灌植物或洗車,節省成本。
生態友好環境
大多數住宅都是朝北/朝南方位,帶來了涼爽舒適的室內環境。所有住宅均安裝有空氣過濾器,爲您的家人提供新鮮空氣並帶來更健康的生活。
電子化系統
您的汽車可以隨時充電,隨時出門。每套住宅都配備有一個環保電動汽車的充電點。
享受任何地點都觸手可及的無限便利。
與家人共度更多美好時光,便利設施近在咫尺的寶藏之地。
位置圖
Greenwich V 3分鍾
NEX Mall 8分鍾
後港坊 9分鍾
宏茂橋城 10分鍾
實裏達航空園 9分鍾
實裏達區域中心 10分鍾
烏節路 15分鍾
中央高速公路 8分鍾
淡濱尼高速公路 9分鍾
連通全島的絕對便利
地鐵南北線
地鐵環線
地鐵東北線
地鐵跨島線
(建設中)
巴士轉換站
*預估驅車時間,視交通情況而定。(來源:谷歌地圖)
住宅四周綠樹成蔭,與之相接的是幾幢氣派的低層有地私宅。營造出自由又私密的居住氛圍。
缤紛多彩的戶外活動
家門口廣闊的豪景山公園(Luxus Hills Park)既是綠意盎然的居民休憩場所,也是綠樹成蔭的居民步道長廊。貫穿公園的是一個引人注目的公園連接器。它的北面是東北河岸環道(North Eastern Riverine loop),通往鄉村海岸線和連接榜鵝海灘和海濱長廊(Punggol Beach and Promenade)的水道。南面是中央城市環道(Central Urban Loop),通往碧山-宏茂橋公園(Bishan-Ang Mo Kio Park)周邊充滿活力的心髒地帶。
豪景山公園(Luxus Hills Park)
該地區作爲一個擁有健康生活的靜谧綠意飛地而享有良好聲譽,一系列精彩絕倫的綠色理想目的地也不斷提升了該地區的聲譽,如榜鵝水道公園(Punggol Waterway Park),榜鵝濱水步道自然徑(Punggol Promenade Nature Walk),和科尼島(Coney Island)。
榜鵝水道公園(Punggol Waterway Park)
榜鵝濱水步道自然徑(Punggol Promenade Nature Walk)
近在咫尺的榜鵝海灘(Punggol Beach)和羅弄哈魯士濕地(Lorong Halus Wetland)的鄉村背景構成了優美的明信片場景。但是想要真正欣賞這些綠色空間,需要體驗它們所提供的活力四射的各類活動。沿著風景迷人的水道劃皮劃艇,沿著田園詩般的海岸線騎行,抛出一根釣魚線,與家人共度美好時光,或者探索充滿生物多樣性的河岸。
實裏達蓄水池公園下段
實裏達(Seletar)的轉型
昔日它是勤奮運轉的橡膠産業,毗鄰英國皇家空軍(Royal Air Force,RAF)基地。現在它是溫暖和諧的私人住宅區,毗鄰未來航空園(Aerospace Park)。迅速發展的實裏達區域中心(Seletar Regional Centre)和航空園(Aerospace Park)(擁有勞斯萊斯集團(Rolls Royce Group)、空中客車直升機公司(Airbus Helicopter)、新科宇航(ST Aerospace)等航空公司)爲潛在的職業機會提供溫床。
兩條即將開通的交通線將豪景山(Luxus Hills)與新加坡的各個角落迅速連接。南北經濟走廊(NSC)能將騎行、步行、乘坐公共汽車和驅車的您從兀蘭(Woodlands)快速引導至濱海灣(Marina Bay)。地鐵跨島線(CRL)能讓乘客從樟宜機場(Changi)便捷抵達裕廊(Jurong)。
實裏達機場
實裏達(Seletar)的深厚文化遺迹和多彩生活方式
多年來,該地區的自然景觀發生了極其顯著的變化;然而也仍然保留著上個世紀以來的大部分文化特色和魅力。今天,實裏達(Seletar)遺産的風味,喜好和魅力仍然充滿活力並蓬勃發展。幾十年前的黑白洋房與曆史悠久的實裏達空軍基地(Seletar Airbase)的全新現代手工精品店緊密相連。
The Summerhouse——橢圓區(The Oval)被孤獨星球(Lonely Planet)評爲“2019年旅行者最佳全新美食體驗地”
Wildseed Cafe——橢圓區(The Oval)
橢圓區飛機遊樂場(The Oval Aeroplane Play Ground)
感受現代化設施的無限便利
該區域有衆多現代便利設施紛紛湧現,如Greenwich V,利達廣場(Seletar Mall),NEX,宏茂橋城(AMK Hub),勘寶坊(Compass One),後港坊(Hougang Mall)和水濱坊(Waterway Point)等都近在咫尺。
NEX Mall
宏茂橋城購物中心(AMK Hub Mall)
俯拾皆是的學習機構
住宅周邊名校雲集,是一個家庭落地生根的理想場所。豐富的學習機構包括:
小學——樂賽小學(Rosyth School),南僑小學(Nan Chiau Primary),豐偉小學(Fernvale Primary);
中學——新民中學(Ximin Secondary),南僑中學(Nan Chiau High School),博文中學(Bowen Secondary);
初級學院——安德森初級學院(Anderson Serangoon JC)
高等教育——南洋理工學院(Nanyang Polytechnic)
由幾代人共同打造出的,供世代流傳的溫馨家園。
萬國置業(Bukit Sembawang Estates Limited)
萬國置業(BSEL)作爲新加坡開發商的先驅者,上世紀50年代的首個有地房産項目就奠定了良好基礎。此後,我們在建造每一個優質住宅時都在不斷改進建築工藝。始終如一的交付別具一格的優質住宅。
萬國置業(BSEL)住宅通過周密的規劃,卓越的設計,精致的細節和優質的飾面。BCI亞洲“2017年新加坡十大開發商”獎項見證了我們爲每一代人建造高質量、高標准和高滿意度的優質生活方式住宅的承諾。作爲全島最大的土地所有者之一,我們秉承著與衆不同的信賴和自信。萬國公司(BSEL)不僅致力于建造優質住宅,還致力于爲世代建造別出心裁的獨特住宅,這也正是我們所珍視的聲譽。
萬國置業(Bukit Sembawang Estates Limited)
萬國置業(Bukit Sembawang Estates Limited)于20世紀50年代開始開發有地房産,1967年在新加坡成立。是1968年在新加坡證交所主板(SGX Mainboard)上市的先驅公司之一。萬國置業(BSEL)目前專注于房地産開發、投資和其他與房地産相關的活動。
集團使命
作爲位居前列並經驗豐富的房地産開發商,我們致力于設計和建造高品質住宅,滿足客戶及世代的願景和生活方式。
集團裏程碑
半個多世紀以來,萬國置業(Bukit Sembawang Estates Limited)建造了衆多新加坡著名且設施成熟的住宅開發項目,包括有地住宅,私人共管公寓和優質公寓。
集團承諾
我們珍視每一位客戶,每一個家庭,我們將一如既往地致力于爲一代又一代的業主創造客戶喜愛,珍惜和欣賞的優質住宅。
豪華私人公寓系列
8 St Thomas
Paterson SuitesThe Vermont>定制有地私宅系列
Nim Collection
Luxus HillsWatercove14 & 16 Lengkok AngsaMimosa Terrace
Homes for Every Generation | 時代家居 世代家園
優質開發商:萬國置業(Bukit Sembawang Estates Limited)
免責聲明:
在編制本文件所載資料時已采取合理的謹慎措施,如有任何不准確或遺漏情況,發展商或其代理人概不負責。所有陳述均被認證爲准確信息,但不應被視爲事實陳述。在打印時,所有信息和規格均爲印刷時的最新信息,但可能會根據開發人員的要求進行更改。除非明確說明,否則所有平面圖及地圖均未按比例繪制,並須根據開發商的要求或有關當局的要求/批准作出修改。所有效果圖、插圖和照片僅爲藝術構想圖,並不被視爲事實陳述。手冊中所述的樓面面積均爲近似值,須以最後測量爲准。
LH
豪景山(Luxus Hills)
豪景山路
豪景山綠景路
豪景山大道
實裏達綠景路
宏茂橋線型公園
宏茂橋5道
Luxus Hill Drive
Seletar Green Walk
豪景山公園
楊厝港路
萬國埔
優質開發商:萬國置業(Bukit Sembawang Estates Limited)
賣點:
隨處可達的周邊便利設施
購物/餐飲
Green V
Seletar Mall
NEX
AMK Hub
Compass One
Hougang Mall
Waterway Point
大自然/休閑中心
Punggol Beach
Lorong Halis Wetland
Punggol Waterway Park
Punggol Promenade Nature Wald
Coney Island.
公寓提供的部分設施包括:
遊泳池
健身角
陽光甲板
健身房
功能房
花園燒烤亭
兒童遊樂場
2公裏內學校
Rosyth Primary School
Nan Chiau Primary School
Fernvale Primary School
Ximin Secondary School
Nan Chiau High School
Bowen Secondary School
Anderson Serangoon JC
Nanyang Polytechnic
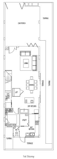
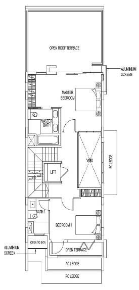
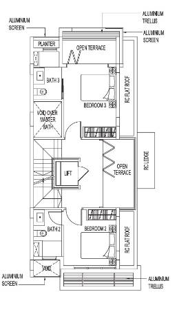
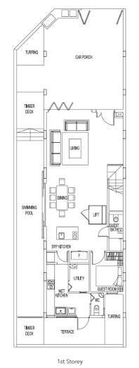
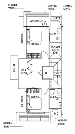
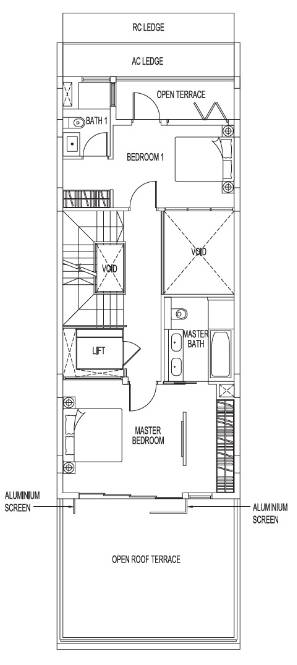
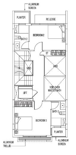
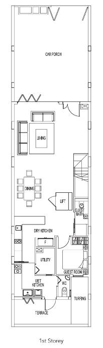
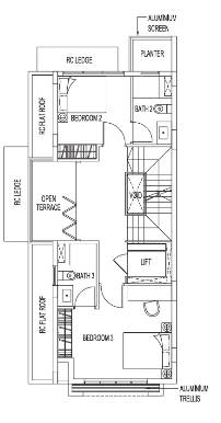
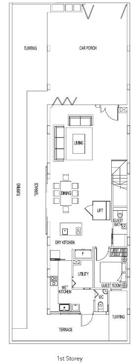
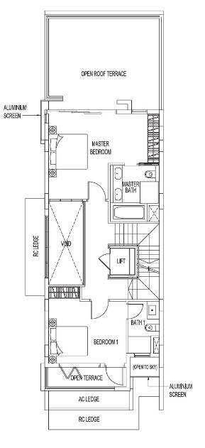
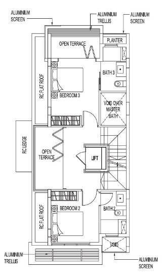
戶型分布:
戶型
面積(平方英尺)
單位數量
Intermediate Terrace
1,615
58
Corner Terrace
2,153-2,207
10
Semi-D
2,153-2,207
10
主力戶型:
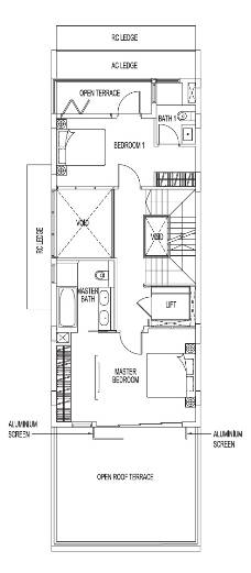
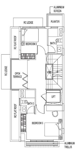
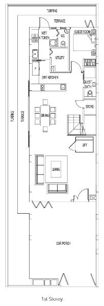
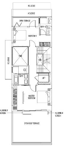
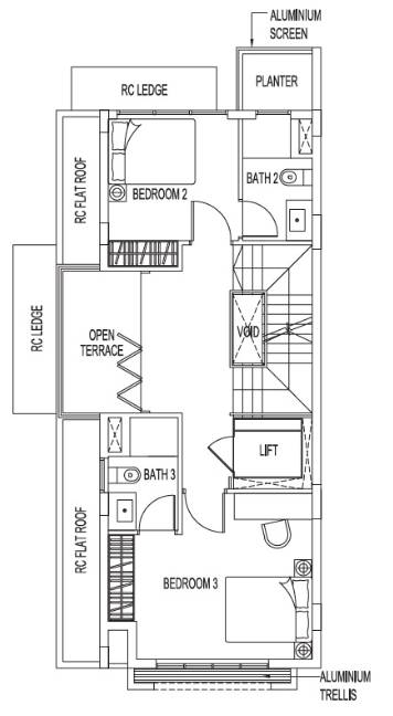
Corner Terrace
新幣 S$ 起F1戶型 3670平方英尺/341平方米
25%首付:S$ / 75%貸款:S$
30年貸款,2%利息,月供:S$
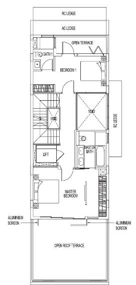
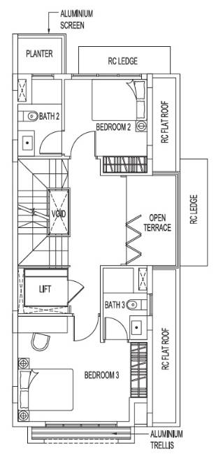
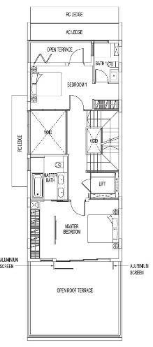
Corner Terrace
新幣 S$ 起F1a戶型 3660平方英尺/340平方米
25%首付:S$ / 75%貸款:S$
30年貸款,2%利息,月供:S$
Corner Terrace
新幣 S$ 起G1戶型 3541平方英尺/329平方米
25%首付:S$ / 75%貸款:S$
30年貸款,2%利息,月供:S$
Corner Terrace
新幣 S$ 起G1(s)戶型 3541平方英尺/329平方米
25%首付:S$ / 75%貸款:S$
30年貸款,2%利息,月供:S$
Interediate Terrace
新幣 S$ 起F戶型 3810平方英尺/354平方米
25%首付:S$ / 75%貸款:S$
30年貸款,2%利息,月供:S$
Intermediate Terrace
新幣 S$ 起G戶型 3756平方英尺/349平方米
25%首付:S$ / 75%貸款:S$
30年貸款,2%利息,月供:S$
Semi-Detahed
新幣 S$ 起SD3戶型 3659平方英尺/340平方米
25%首付:S$ / 75%貸款:S$
30年貸款,2%利息,月供:S$
Semi-Detached
新幣 S$ 起SD3a戶型 3670平方英尺/341平方米
25%首付:S$ / 75%貸款:S$
30年貸款,2%利息,月供:S$
Semi-Detached
新幣 S$ 起SD4戶型 3541平方英尺/329平方米
25%首付:S$ / 75%貸款:S$
30年貸款,2%利息,月供:S$





























































