一場疫情讓大家意識到投資多樣化以防止損失的重要性,讓許多人意識到“不動産”的重要性,房地産是一種特別好的對沖波動和過度通脹的工具。
新加坡私宅市場自冠病疫情以來一直逆勢上揚,極具韌性和穩定的市場,成爲許多大中華地區高淨值人士的資産避風港。
疫情期新加坡房地産表現強勁,價格漲最多的是優質別墅GCB板塊,因爲稀缺,最核心地點價格幾乎翻倍了。
另外,頂級公寓豪宅板也受國際投資者追捧,4-5房大平層戶型成爲了香饽饽,本身數量稀少,再加上疫情裏大家對更大空間的需求,可謂是供不應求。
以下我們就通過不同的區域來羅列還有大平層的公寓:
烏 / 節 / 路 / 區 / 域 ORCHARD 01 3 Orchard By The Park
項目亮點 坐落在新加坡最高尚的住宅區域,亞洲著名的購物區 – 烏節路,圍繞著項目是豪華的高級酒店和新加坡具有地標性的購物商場,豐富多彩的零售、餐飲和娛樂選擇,滿足不同品味和預算需求。
步行可到新加坡植物園,200米到Orchard Boulevard地鐵站。概念化了意大利建築師和設計師Antonio Citterio對“天空中的別墅”的設想,每間都擁有定制的室內設計以及創造性的余地。
項目點評
交通便利,永久地契,獲得”綠色建築設計獎”,絕佳城市天際景色,公寓園藝設計優美,種植獨特胡姬花品種賞心悅目。
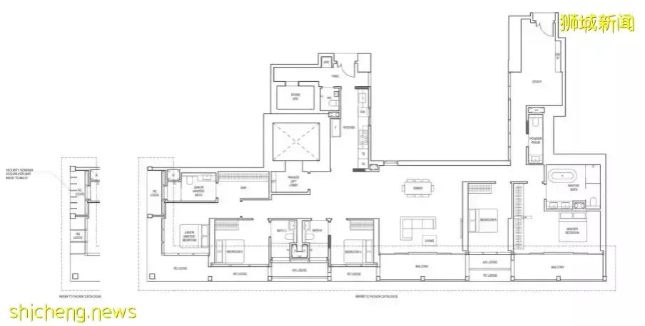
四臥,11樓,面積2260平方尺
叫價:$7,700,000 單價:$3400psf
現房, 可拎包入住
02 Klimt Cairnhill
項目亮點
該項目與著名畫家古斯塔夫·克裏姆特(Gustav Klimt)同名,受克裏姆特(Klimt)的傑作《吻》(The Kiss)的啓發,Klimt Cairnhill項目采用金色立面,將散發出新藝術運動的浪漫主義氣息。
該項目保留有一棟曆史悠久的平房,將作爲其大型會所。距離紅藍兩色的紐頓地鐵轉換站(Newton MRT)約400米, 步行可到烏節路。鄰近世界級醫療中心,牛頓小販中心,英華自主中學。
項目點評
經禧路作爲新加坡老富豪的落腳點,關系密切。由于剛開盤不久,大戶型單位數量充足。
四臥, 35樓,面積2368平方尺
叫價:$10,630,000 單價:$4489psf
03 Riviere
項目亮點
身居瑞雅嘉苑,每當河邊漫步之時,腦海中自然而然的回響起奧地利著名作曲家施特勞斯的圓舞曲《藍色多瑙河》。
毗鄰新加坡河,實現最大化的戶戶觀河,首創院落水景一體創意,形成半島環繞、群島競生的獨家原生態風景,致力于打造高品質的河畔島居慢節奏生活,河居養生典範社區。
項目點評
瑞雅嘉苑的社區爲泛歐式園林設計,引水入居是最大特色。所謂風水寶地,並非虛言,瑞雅嘉苑屬于元寶宅,豐腴元寶地形,藏風聚氣,風水絕佳!
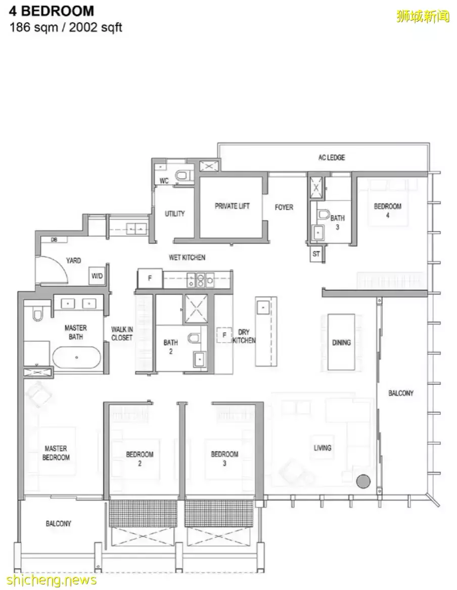
四臥, 14樓,面積2002平方尺 叫價:$5,650,000 單價:$2800psf 2022年底或2023年頭交房 04 The Avenir
項目亮點 項目由來自法國的知名建築師弗朗索瓦·米盧(Jean Francois Milou)操刀設計,他曾負責新加坡國家美術館改建項目。這是讓人耳目一新的優秀豪宅作品。
Avenir集合了新加坡城市中心幾個地標豪宅的優點于一身, 同時把空間感,戶型效率,生活品質展現到極致. 其中224平米的4+1的戶型,幾乎是豪宅區(9,10郵區)唯一能夠當作的5房使用的大平層。
寬敞方正的廚房,帶有頂級豪宅才配備的中央“島台”;超大的客廳和陽台,步入就有有超級豪宅的氣場;幾乎是烏節路附近面積最大的主人房,配有步入式衣櫃和超豪華浴室,給主人極致的享受!
所有房間均爲套房設計,保證獨立和隱私, 整個戶型設計,把空間感和效率做到極致,用2400方尺價格購買到了常規3500方尺的空間體驗感。
項目點評
The Avenir 豪宅的升值潛能,要歸結于關鍵詞:“黃金地段”、“永久産權”、“完美高效戶型”、“奢華內置”。
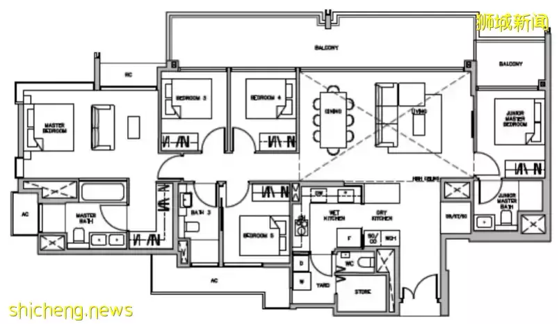
四臥+家庭房, 8樓,面積2411平方尺
叫價:$7,780,00 單價:$3220psf
05 LLoyd Sixty Five
項目亮點 步行5分鍾即可到Somerset地鐵站,烏節路購物區,Killiney路上的餐廳以及24小時超市,距離CBD只有15分鍾。
本身是一個智能的高端住宅開發項目,爲居民提供高天花板住宅,設有大陽台和一系列設施。
項目點評
永久地契,樓盤內單位很寬敞,高天花板,給人空間感。在位置方面,Lloyd Sixty Five立于不敗之地,雖然在烏節路但是卻遠離主幹道,不會受到交通噪音的影響。
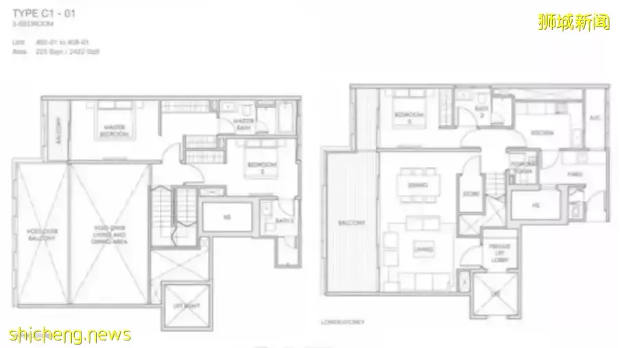
三臥, 6樓,面積2422平方尺
叫價:$7,578,000 單價:$3129psf
現房,拎包入住
06 Irwell Hill Residences
項目亮點
從公寓步行幾分鍾就是大世界購物中心(Great World City Shopping Mall),配套有完善的電影院、超市、品牌店鋪和食閣等等,滿足您的一切日常購物、周末聚會的需求。輕松步行到烏節路購物區以及新加坡河和福康甯公園。
項目點評
在土地資源非常有限的烏節路,Irwell Hill是目前性價比最高的樓盤,升值潛力大。
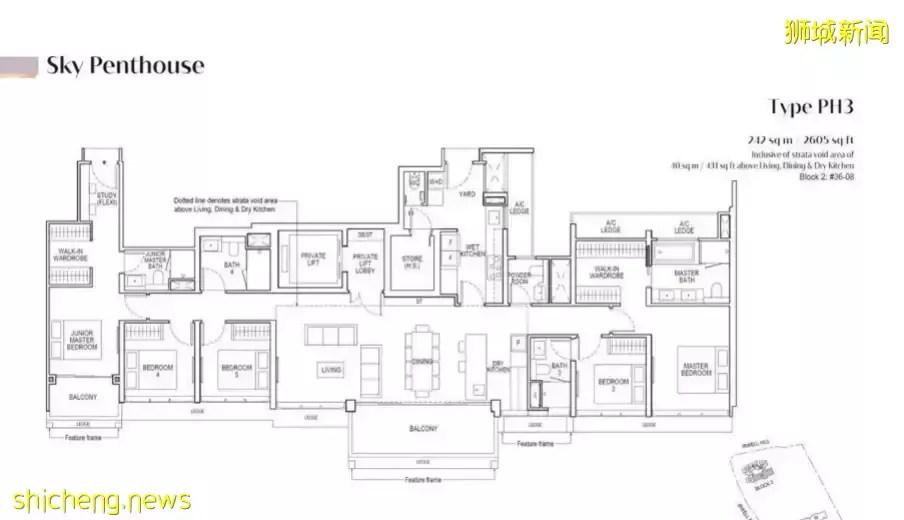
五臥, 36樓,面積2605平方尺 叫價:$10,943,000 單價:$4200psf 07 Park Nova
項目亮點 新盤中最豪華的公寓!柏皓獨特的弧型設計,讓住戶欣賞270度的廣闊的新加坡城市景觀,同時保持空間的相互聯系和流動感,把大自然的氣息,戶外的魅力帶入舒適的家中。
整個建築每一層的結構都呈不規則形態,根據蝴蝶飛舞的樣子來設計的,每一層都被獨特的花園環繞,不僅達到自然遮蔭和通風的效果,也使建築看起來也更輕盈。
項目點評
稀有大戶型,寬敞戶型,高效布局。極致用料,奢華裝修。每層送花園,空中別墅的體驗。一層3戶獨立式戶型,每一戶都沒有和鄰居共享牆。所有單位都配有私人電梯,私人大堂。
四臥, 3樓,面積2895平方尺, 叫價:$13,504,000 單價:$4660psf 08 The Ritz-Carlton Residences
項目亮點 新加坡麗思卡爾頓公寓位于亞洲第一家永久産權麗思卡爾頓酒店,位于新加坡第9區,屬于核心中央區,永久地契項目。
麗思卡爾頓公寓是東南亞唯一一棟由豪華連鎖酒店管理並配備工作人員的獨立住宅樓。距新加坡首屈一指的購物區烏節路僅5分鍾路程。
項目點評
永久地契,豪宅風範。頂級酒店品牌住宅,享受頂級官家禮賓服務。
四臥, 13樓,面積2831平方尺 叫價:$13,200,000 單價:$4660psf 現房,拎包入住 09 Canninghill Piers
項目亮點 這座地標性住宅是綜合開發項目的一部分,該項目還包括一個名爲 CanningHill Square 的帶有餐飲和零售店的商業部分、一家由萬豪國際集團以 Moxy 品牌運營的酒店以及一個以 Somerset 品牌運營的擁有酒店執照的服務式住宅。
項目點評
傍水面山,風水極佳!頂級位置,城市中心,新加坡河邊。超級綜合體(豪宅,商場,酒店,地鐵,碼頭),便利生活。新加坡最大的兩家開發商強強聯手(Capitaland + CDL)。
被公園環繞,環境極佳,美景奢華與自然完美結合。世界頂級建築大師打造,新加坡河沿岸最高的住宅項目。
五臥, 25樓,面積2788平方尺 叫價:$8,326,000 單價:$2980psf
武 / 吉 / 知 / 馬 / 區 / 域 BUKIT TIMAH 01 15 Holland Hill
項目亮點 位置在荷蘭路地區,新加坡最主要的住宅區之一,純私人住宅區的一部分。延伸到北部到武吉知馬,向東到烏節路。
走路10-12分鍾,即可到達荷蘭村最熱鬧的地方,咖啡館、餐館、亞洲和西式美食、快餐店、冰淇淋店、酒吧,一切皆有。
項目點評
第10郵區,荷蘭山山頂的花園豪宅,高架景觀,空中花園,華人最愛的方正大氣戶型。
三臥, 15樓,面積2045平方尺 叫價:$6,200,000 單價:$3033psf 2022年底交房 02 Juniper Hill
項目亮點
附近都是大片的高級私宅區和有地別墅,5分鍾車程即可到達大名鼎鼎的烏節路商業區,新加坡植物園同樣5分鍾車程。史蒂芬地鐵站(Stevens),距離Juniper Hill約580米,此站爲藍線和巧克力線的地鐵轉換樞紐之一。
Juniper Hill公寓一公裏範圍之內,有四所著名學府。英華小學(ACS Primary,男校)是本地九所GEP學校之一。新加坡女子學校(SGCS) 是本地排名靠前的女子小學。本地享有盛名的萊佛士女子中學和聖約瑟書院,同樣位于一公裏範圍內。
項目點評
“黃金郵區,永久地契,名校學區,靠近地鐵”的四合一項目。
五臥,12樓頂樓,面積2217平方尺
叫價:$6,631,000 單價:$2991psf
2022年3月交房
03 Nouvel 18
項目亮點 由榮獲普利策建築大獎的法國建築名師努維爾(JeanNouvel)設計,罕見永久地契豪華項目,位于最富有盛名的阿摩園與安徒生路住宅區,緊鄰香格裏拉酒店,項目的周邊有著名的休閑俱樂部,頂尖的學校,以及郁郁蔥蔥的新加坡植物園。
項目點評
永久地契新盤現房中,位置最核心,最尊貴的樓盤。鬧中取靜,無敵城市美景,步行可至烏節路繁華路段。
四臥+書房, 13樓,面積2476平方尺 叫價:$8,500,000 單價:$3400psf 現房,拎包入住
紐頓 / 羅敏娜區域 NEWTON/NOVENA 01 Reignwood Hamilton Scotts
項目亮點 高端豪華住宅開發項目,面向非常高端人群。本項目爲酒店式服務公寓,擁有自己的專業服務,服務員主要由外國使館精心挑選。提供了一流的,酒店式的生活體驗,也有助于在居民中建立並保持一個非常緊密團結的私人社區。
項目點評
最大賣點就是號稱亞洲最高的空中車庫,由升降機把車送到指定位置,讓車瞬間出現在客廳沙發旁邊。
寬敞的大理石地面加上窗外高樓層的都會景觀,配合精致的燈光投射,簡直像把跑車展示場搬進家中,隨時都可欣賞愛車的絕代風華。
三臥, 28樓,面積2756平方尺 叫價:$11,880,000 單價:$4300psf 現房,拎包入住











































