四臥三衛 1023尺 95平方米 99年産權
誠意出售 投資自住皆可 歡迎同行合作
要價新幣130萬
項目簡介
Symphony Suites 位于新加坡D27郵區,1 Yishun Close 768004,是由EL Development (Yishun) Pte Ltd開發的高層公寓。該項目于2019年建成,有停車場,臨近地鐵,交通便利。
新加坡郵區分布圖 ,
房源概況
樓盤名稱:Symphony Suites
開發商:EL Development (Yishun) Pte. Ltd.
産權:99年産權
完成年份:2019年
房屋面積:1023平方英尺 / 95平方米
所在樓層:高層
房屋總價:新幣 S$1,300,000
每平方英尺均價:新幣 S$1,270.77
賣點
超值二手房出售 | 自住投資俱佳
– 四方格局,超高樓層
– 屋主自住,保養良好
– 三個房間可放普通雙人床,主臥可放超大雙人床
– 全部實用面積,無陽台占位
– 封閉式廚房,煤氣明火
– 保姆房及獨立衛生間
– 朝向安靜,通風明亮,大門不直對鄰居 有隱私
– 樓下吃飯購物超方便
– 靠近XCL國際學校
– 無EC五年及MSR30%貸款限制
– 自住投資俱佳,適合未來周邊組屋提升家庭
– 臨近義順地鐵站
附近學校:
· Chongfu School
· Xishan Primary School
· Huamin Primary School
· North View Primary School
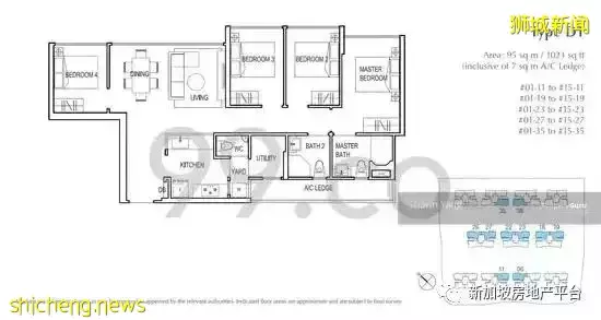
戶型信息
3室3衛公寓
新幣 S$1,300,000 起
4室3衛 1023平方英尺/95平方米
25%首付:S$325,000 / 75%貸款:S$975,000
30年貸款,2%利息,月供:S$3,604
























