Kopar at Newton 紐頓銅源(D09),紐頓地鐵站邊上的公寓期房,學區房,合約交房日期2023年12月31日。兩棟23層的建築,總共378個單位。378個停車位,4個殘疾人停車位。
位于中心區域,升值潛力巨大。
走路2分鍾到達著名的紐頓熟食中心,5分鍾到達紐頓地鐵站。
上中央快速公路(CTE),泛島快速公路(PIE)非常方便。
距離烏節路,CBD 都近,租金回報率高。
一公裏內三個名小學。
地理位置:
周圍小學:
小區平面圖:
小區效果圖:
管理費(預計):
房型分布及樓層規劃:
房型圖及價錢:
1房小戶型,517 平方英尺(48 平方米),新幣 1,359,000 起。
房型圖:
2房經典,614 平方英尺(57 平方米),新幣 1,663,000 起。
房型圖:
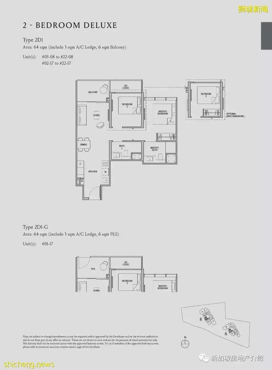
2房豪華型,689 平方英尺(64 平方米),新幣 1,837,000 起。
房型圖:
3房經典,售罄。
3房豪華型,1055 平方英尺(98 平方米) 到 1098 平方英尺(102 平方米),新幣 2,721,000 起。
房型圖:
3房豪華型閣樓,1593 平方英尺(148 平方米) 到 1636 平方英尺(152 平方米),新幣 3,775,000 起。
房型圖:
4房豪華型,1518 平方英尺(141 平方米) 到 1604 平方英尺(149 平方米),新幣 3,554,000 起。
房型圖:
4房豪華型閣樓,售罄。
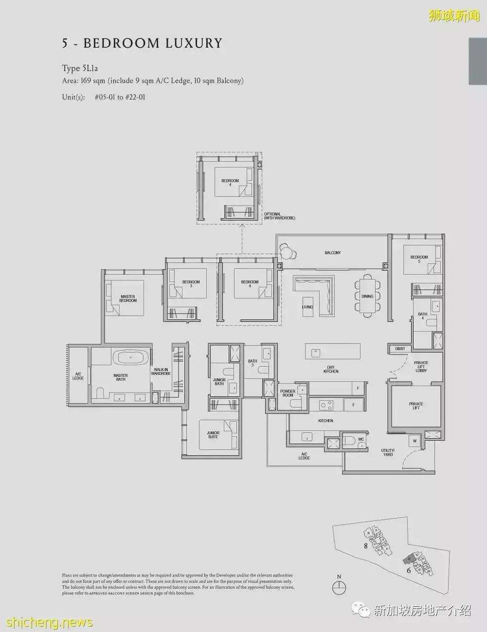
5房豪華型,1819 平方英尺(169 平方米),新幣 4,096,000 起。
房型圖:
超大豪華型閣樓,售罄。
所有房型單位可能隨時售罄。所有房價可能隨時調整而沒有通知,由開發商決定。



























