The Peak @ Cairnhill II(D09),位于烏節路的永久地契現房公寓,學區房。交房日期2015年12月3日,目前還有開發商的一手房源。一棟18層的建築,總共60個單位,61個(包括1個殘疾人)停車位。
位于 Cairnhill Circle 的最高點。
走路幾分鍾到烏節路。
私人電梯入戶。
走路可到三個地鐵站(烏節路,紐頓,索美塞)。
地理位置:
周圍小學:
小區平面圖:
小區效果圖:
樣板房照片:
管理費(預計):
房型分布及樓層規劃:
房型圖及價錢:
2房,829 平方英尺(77 平方米) 到 969 平方英尺(90 平方米),新幣 2,481,000 起。
房型圖:
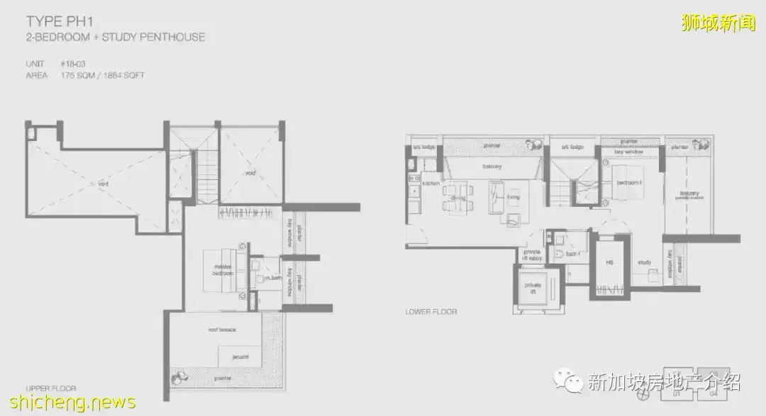
2房加書房,閣樓,1862 平方英尺(173 平方米) 到 1884 平方英尺(175 平方米),新幣 5,225,000 起。
房型圖:
所有房型單位可能隨時售罄。所有房價可能隨時調整而沒有通知,由開發商決定。

















