來感受一下CBD的豪宅!
位于濱海灣的 Marina One Residences 濱海盛景豪苑,由新加坡政府和馬來西亞政府合資興建。
由豪華住宅,辦公室,商鋪組成的綜合發展項目。總共1042個單位。1505個停車位(需要單獨付費)。
3個地鐵站,4條地鐵線就在樓下!地下通道連接地鐵站及金沙賭場。
中心公園及濱海灣廣場就在左右兩側。
65000 平方英尺(6000 平方米)的花園,建在項目的中心位置。
由世界著名的建築設計師Christoph Ingenhoven 設計。
34層樓高的住宅,由1房,2房,2房加書房,3房,4房,頂層閣樓組成。
地理位置:
周圍小學:
兩公裏內有一所小學。
小區平面圖:
小區效果圖:
樣板房照片:
管理費(預計):
1房,每個月310新幣。
1房加書房,每個月310新幣。
2房,每個月310新幣或者360新幣。
2房加書房,3房,3房加書房,每個月360新幣。
4房,每個月450新幣。
閣樓,每個月870新幣至1025新幣。
房型圖及價錢:
1房,700 平方英尺(65 平方米),新幣 1,760,654 起。
房型圖:
1房加書房,售罄。
2房,售罄。
2房加書房,1163 平方英尺(108 平方米),新幣 3,088,000 起。
房型圖:
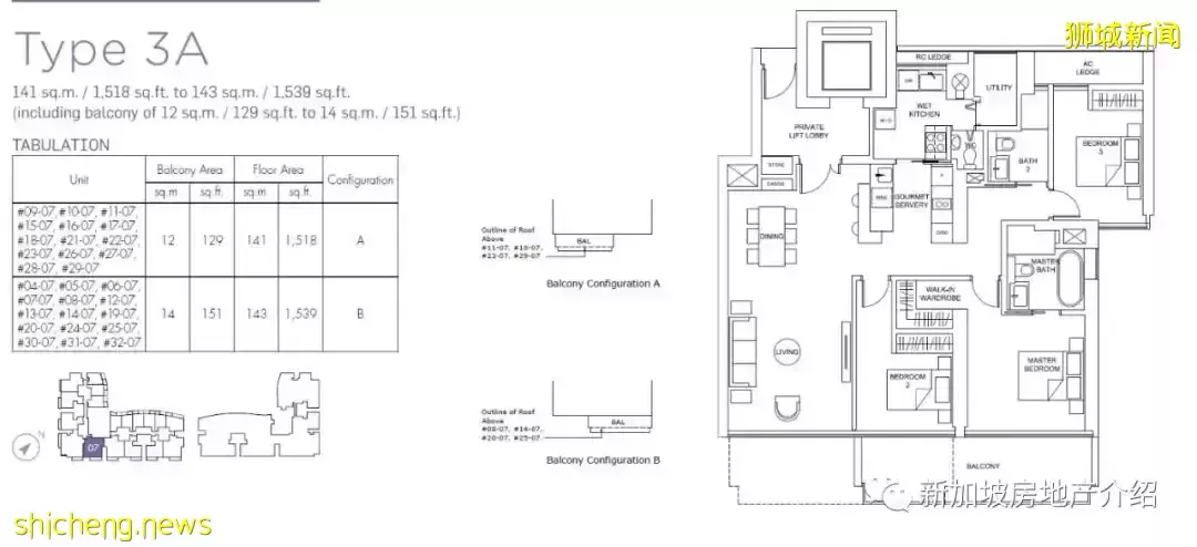
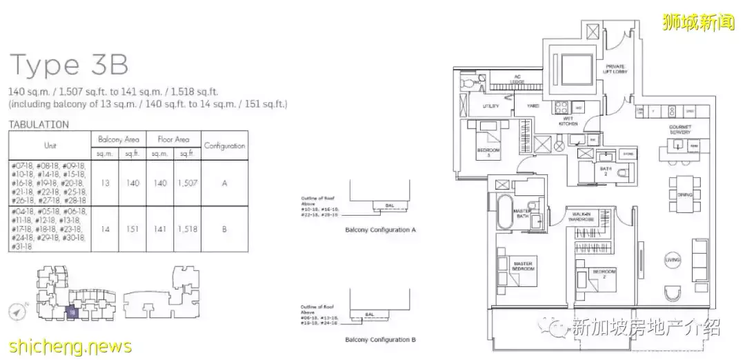
3房,1518 平方英尺(141 平方米) 到 1539 平方英尺(143 平方米),新幣 3,744,171 起。
房型圖:
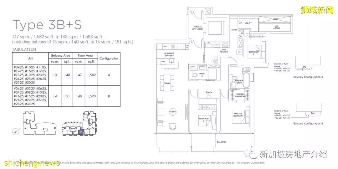
3房加書房,1561 平方英尺(145 平方米) 到 1593 平方英尺(148 平方米),新幣 4,329,032 起。
房型圖:
4房,售罄。
4房閣樓,7244 平方英尺(673 平方米) 到 8708 平方英尺(809 平方米),新幣 2,0139,300 起。
房型圖:
所有房型單位可能隨時售罄。所有房價可能隨時調整而沒有通知,由開發商決定。





























