前言
Piccadilly Grand是由城市發展公司(City Developments Limited)和MCL Land聯手投資打造。該項目位于D08郵區的Northumberland Road,擁有99年産權,戶型包括了1室,2室,3室,4室,5室共407個單位。
Piccadilly Grand 的名字來源于英國倫敦的皮卡迪利圓環(Piccadilly Circus),是倫敦的標志性購物區,是文化、傳統和現代的中心。就像它在倫敦的名字一樣,Piccadilly Grand 旨在成爲花拉公園區的下一個指標性地標。該項目反映了花拉公園的文化和遺産,同時鼓勵其複興。
項目簡介
項目的總占地面積爲8732.9平方米,是一個商住兩用的混合項目,高層爲主,一共有405個住宅和商業單位。一樓主要由商用單位組成,包括嬰兒護理中心和一家托兒中心。私人住宅則包括一臥到四臥等多種房型,選擇頗多
地理位置
Piccadilly Grand 地塊位于 Racecourse Road 和 Gloucester Road 的交界處,與花拉公園地鐵站和花拉公園醫院斜對面。由于它位于小印度曆史街區外,因此該地塊也靠近大型零售開發項目,如穆斯塔法中心和城市廣場購物中心。
項目風格
Piccadilly Grand 的整體環境設計屬于現代與自然結合的風格,致力于讓每個住戶都能在家就享受到非同一般的景色的氛圍。來自 5 個精心策劃的生活方式區,3 個層次的活動,3 個俱樂部會所以滿足各種生活方式。
公寓的內部設施也一應俱全,爲住戶們提供了能健身、放松、小聚等多種休閑娛樂的場所,包括無邊泳池、水療休息室、健身房、花園、多功能室和燒烤區。園區內自然景觀豐富,綠植、花卉和水景錯落有致,完美地诠釋了都市綠洲的設計概念。
到 |達 |區 |
從踏入到達區的那一刻起,場景就是爲高尚的生活而設。三間各具特色的會所在發展中,令人眼花缭亂暗示內部等待的東西——時尚的細節、奢華的裝飾和郁郁蔥蔥呼吸的空間。
休 |閑
讓自己沉浸在融合的呵護氛圍中甯靜和活力 – 周圍環繞著郁郁蔥蔥的景色啓動您的日常健身計劃。
周邊設施
地鐵站
NE8-花拉公園-Farrer Park
公立學校
華苑小學(Farrer Park Primary School)
宏文學校(Hong Wen School)
聖若瑟書院附小(St. Joseph’s Institution Junior)
英華學校 (經禧)(Anglo-Chinese School Junior)
英華學校 (小學)(Anglo-Chinese School (Primary))
明智小學(Bendemeer Primary School)
聖瑪格烈小學(St. Margaret’s Primary School)
北爍學校(Northlight School)
明智中學(Bendemeer Secondary School)
英華學校 (巴克路)(Anglo-Chinese School (Barker Road))
聖安德烈中學(St. Andrew’s Secondary School)
聖安德烈初院(St. Andrew’s Junior College)
公教初院(Catholic Junior College)
獨立學校
新加坡藝術學院(School of the Arts Singapore, SOTA)
大專學府
新加坡管理大學(Singapore Management University, SMU)
新加坡楷博高等教育學院(Kaplan)
南洋藝術學院(Nanyang Academy Of Fine Arts, NAFA)
新加坡拉薩爾藝術學院(Lasalle College of The Arts)
國際學校
英威特國際學校 (實龍崗路校區)(Invictus International School Centrium Campus)
英仕學院(Insworld Institute)
購物
城市廣場(City Square Mall)
慕斯達法購物中心(Mustafa Centre)
森林商業中心(Sim Lim Square)
白沙浮村(Bugis Village)
白沙浮娛樂廣場(Bugis+)
白沙浮廣場(Bugis Junction)
戶型圖
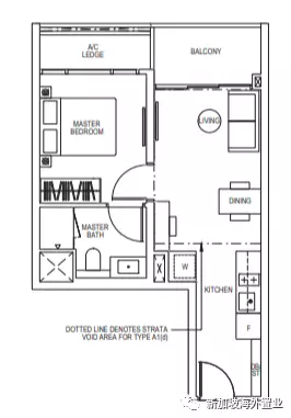
1室
戶型A1: 45平方米 / 484平方尺
戶型A1(d): 58平方米 / 624平方尺
2室
戶型B1: 60平方米 / 646平方尺
戶型B1(d): 76平方米 / 818平方尺
2室+書房
戶型B3S: 66平方米 / 710平方尺
戶型B3S(d): 81平方米 / 8272平方尺
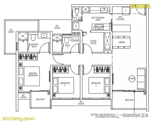
3室
戶型C2: 100平方米 / 1076平方尺
戶型C2(d): 125平方米 / 1346平方尺
4室
戶型D2DK: 128平方米 / 1378平方尺
戶型D2DK(d): 153平方米 / 1647平方尺
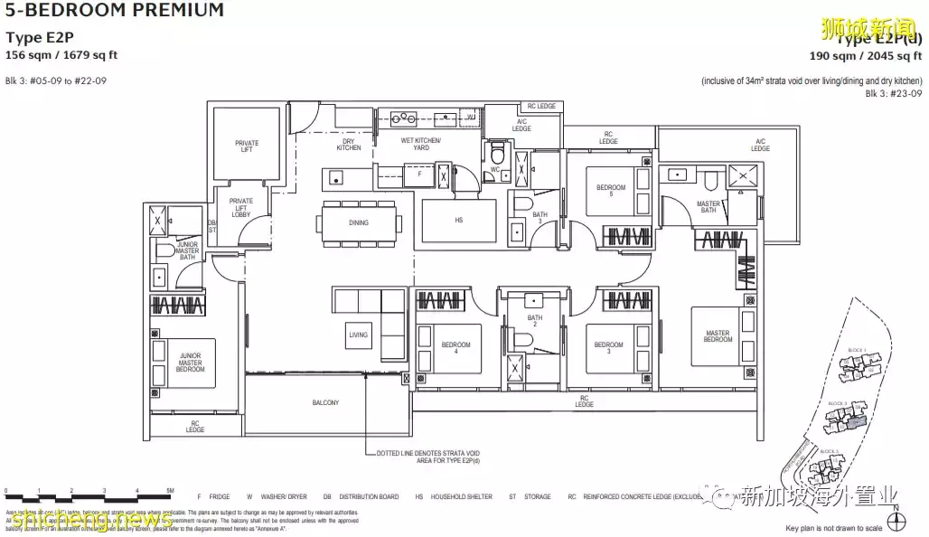
5室
戶型E2P: 156平方米 / 1679平方尺
戶型D2DK(d): 190平方米 / 2045平方尺
Piccadilly Grand因爲它的地點優越,靠近市區,靠近大型工作區,這裏有強大的租客群,所以無論是從自住還是投資的方面考慮都是絕佳的選擇。

















