地鐵口高層住宅,1室-5室戶型,99年産權,D08郵區,近CBD的品質房源!
簡介
Piccadilly Grand 位于D08郵區,Northumberland Rd,Singapore,是由CDL與MCL聯合開發的房地産項目。該項目包含3幢23層樓宇,總計407套住宅單元,預計2026年8月完工。戶型包含1室-5室多種類的戶型,單戶面積區間484-2045平方英尺,可滿足不同類型的居住需求。
三幢建築低層(1層及2層部分)均爲商用,包含商場、餐飲、托兒中心等。生活休閑設施設于3層及4層之上,泳池、業主會所、小徑長廊、兒童遊樂場等等應有盡有。在享受商業便利的同時,亦能擁有品質生活。占據優勢地理,比鄰CBD,是不可多得的置業之選。
新加坡郵區分布圖 ,
樓盤所在位置
樓盤概況
樓盤名稱:Piccadilly Grand
開發商:CDL & MDL
産權:99年
預計完成時間:2026年8月
單位數量:407
樓層數量:23
起始總價:新幣 S$
每平方英尺起始:新幣 S$
賣點
· 1-5室多樣戶型,407套稀缺住宅
· 緊鄰地鐵口,交通便利,一“鍵”直達CBD
· 低層商業,3至4層爲生活休閑設施,應有盡有
· 大開發商背書,品質保證
交通便利
· 直通Farrer Park MRT地鐵站
· 地鐵2站抵達Dhoby Ghaut 地鐵換乘站
品質生活
三幢高層建築的低層(1層及部分2層)爲貫通的商業中心,餐飲購物娛樂十分方便
· 3層設有露天的Botanical Zone(綠植區),盡享清新自然
· 4層設有Tranquility Zone(休閑區),業主會所、Spa、長廊、餐廳(2層)等
· 4層另設Vitality Zone(活力區),健走小徑、戶外燒烤亭、泳池、休閑走廊等
· Social Zone(社交區)也在4層,包括社交會所、家庭泳池、兒童戲水池、兒童遊樂場、寵物遊樂場等設施應有盡有
戶型分布
主力戶型
1室
新幣 S$ 起
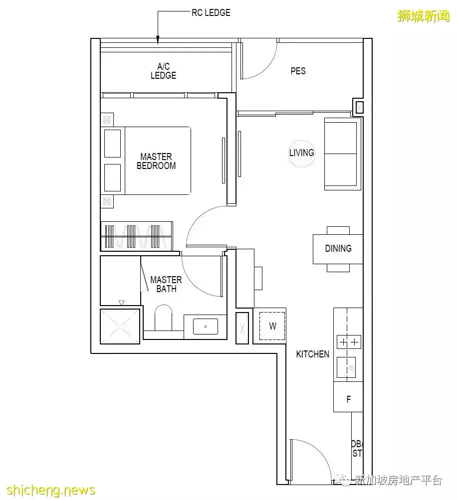
A1戶型 1室 484平方英尺/45平方米
25%首付:S$ / 75%貸款:S$
30年貸款,2%利息,月供:S$
1室
新幣 S$ 起
A1(d)戶型 1室 624平方英尺/58平方米
25%首付:S$ / 75%貸款:S$
30年貸款,2%利息,月供:S$
1室
新幣 S$ 起
A1(p)戶型 1室 484平方英尺/45平方米
25%首付:S$ / 75%貸款:S$
30年貸款,2%利息,月供:S$
1室+書房
新幣 S$ 起
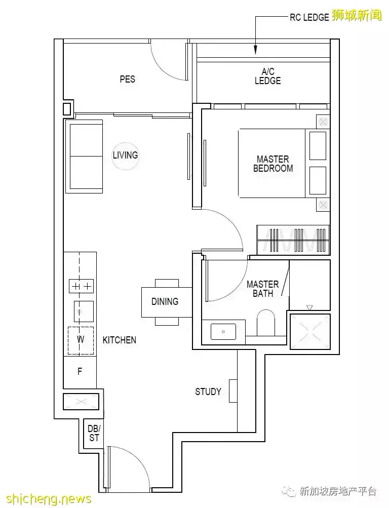
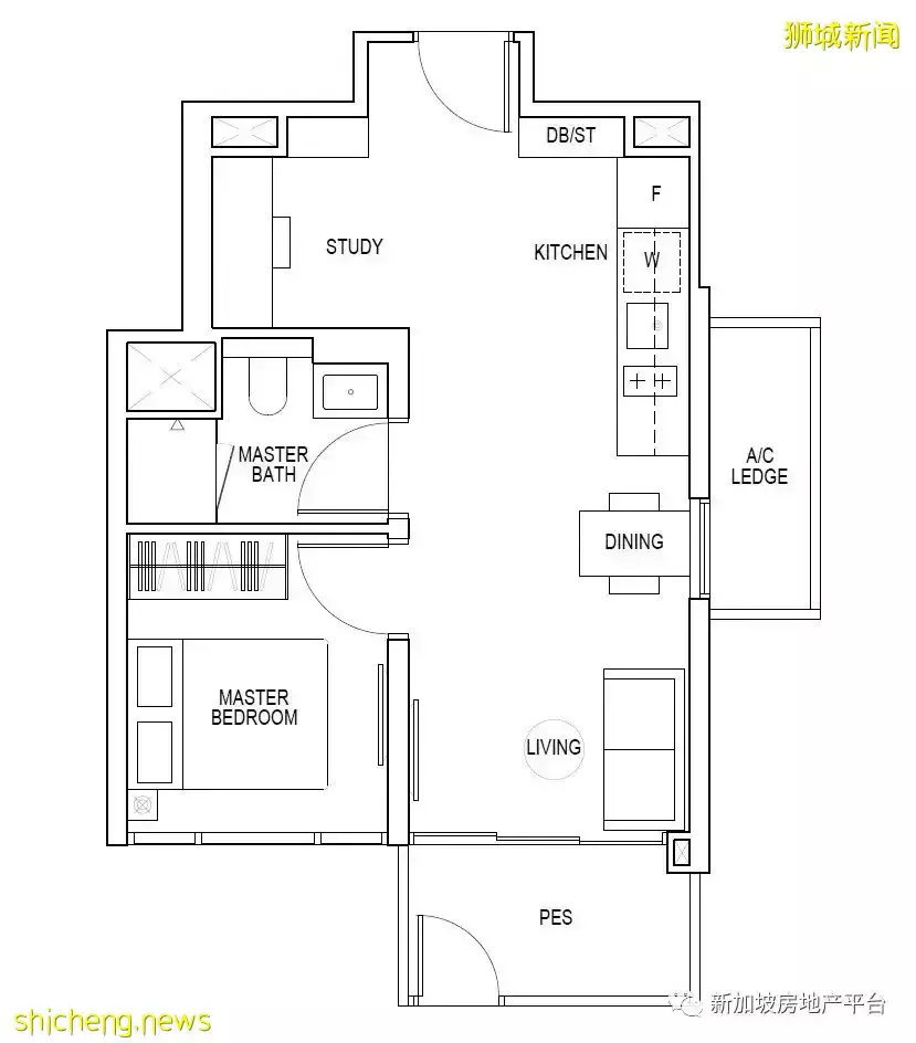
A2S戶型 1室+Study 484平方英尺/45平方米
25%首付:S$ / 75%貸款:S$
30年貸款,2%利息,月供:S$
1室+書房
新幣 S$ 起
A3S戶型 1室+Study 517平方英尺/48平方米
25%首付:S$ / 75%貸款:S$
30年貸款,2%利息,月供:S$
1室+書房
新幣 S$ 起
A3S(d)戶型 1室+Study 689平方英尺/64平方米
25%首付:S$ / 75%貸款:S$
30年貸款,2%利息,月供:S$
1室+書房
新幣 S$ 起
A3S(p)戶型 1室+Study 517平方英尺/48平方米
25%首付:S$ / 75%貸款:S$
30年貸款,2%利息,月供:S$
1室+書房
新幣 S$ 起
A4S(p)戶型 1室+Study 517平方英尺/48平方米
25%首付:S$ / 75%貸款:S$
30年貸款,2%利息,月供:S$
2室
新幣 S$ 起
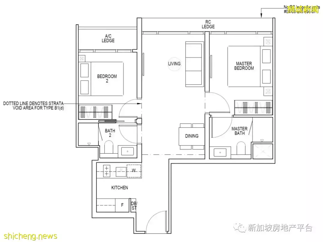
B1戶型 2室 646平方英尺/60平方米
25%首付:S$ / 75%貸款:S$
30年貸款,2%利息,月供:S$
2室
新幣 S$ 起
B1(d)戶型 2室 818平方英尺/76平方米
25%首付:S$ / 75%貸款:S$
30年貸款,2%利息,月供:S$
2室+書房
新幣 S$ 起
B2S戶型 2室+Study 678平方英尺/63平方米
25%首付:S$ / 75%貸款:S$
30年貸款,2%利息,月供:S$
2室+書房
新幣 S$ 起
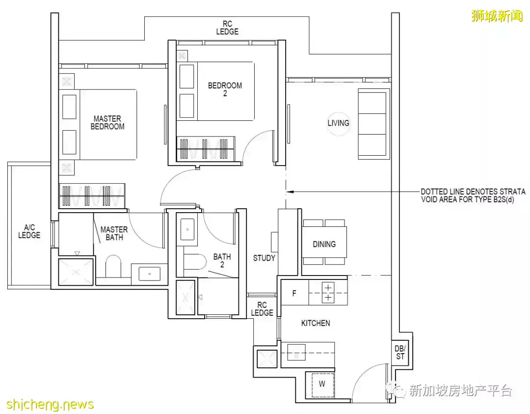
B2S(d)戶型 2室+Study 829平方英尺/77平方米
25%首付:S$ / 75%貸款:S$
30年貸款,2%利息,月供:S$
2室+書房
新幣 S$ 起
B3S戶型 2室+Study 710平方英尺/66平方米
25%首付:S$ / 75%貸款:S$
30年貸款,2%利息,月供:S$
2室+書房
新幣 S$ 起
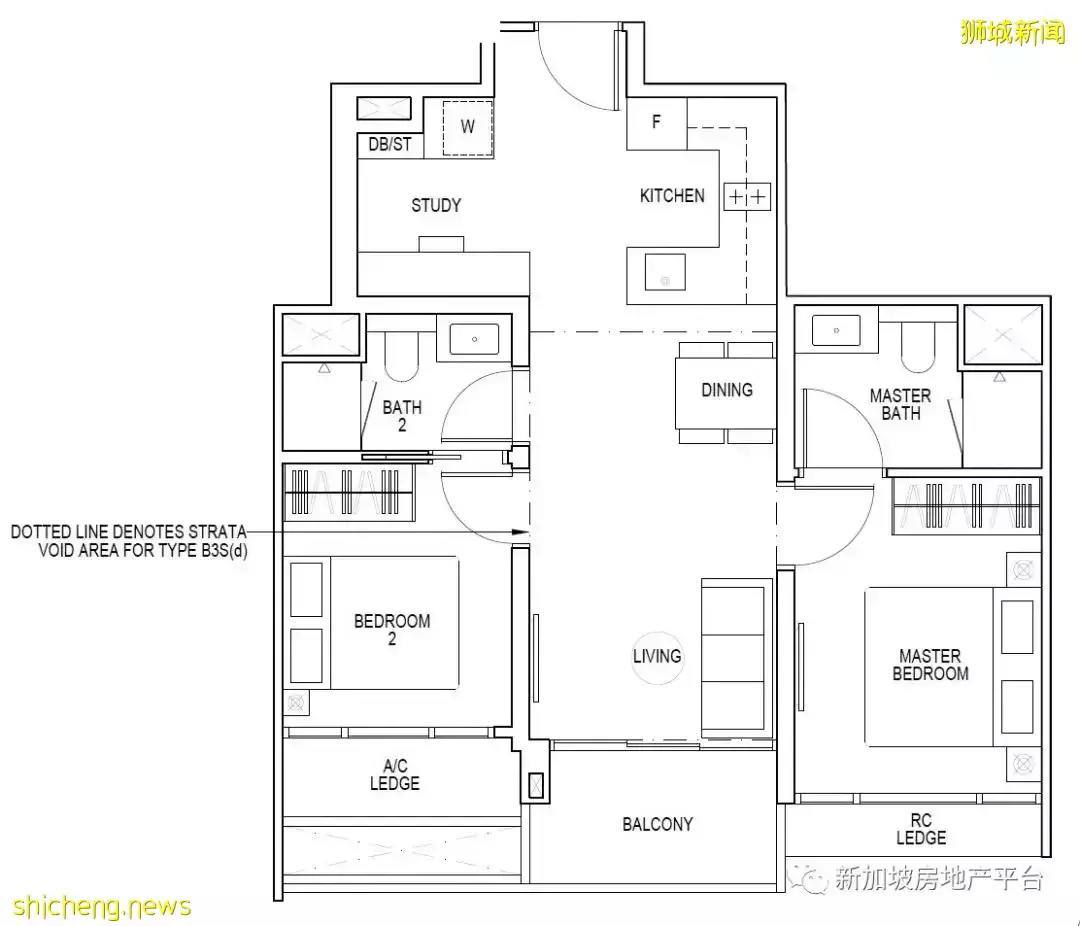
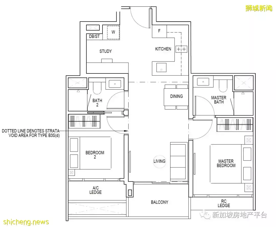
B3S(d)戶型 2室+Study 872平方英尺/81平方米
25%首付:S$ / 75%貸款:S$
30年貸款,2%利息,月供:S$
2室+書房
新幣 S$ 起
B3S(p)戶型 2室+Study 710平方英尺/66平方米
25%首付:S$ / 75%貸款:S$
30年貸款,2%利息,月供:S$
2室+書房
新幣 S$ 起
B4S戶型 2室+Study 710平方英尺/66平方米
25%首付:S$ / 75%貸款:S$
30年貸款,2%利息,月供:S$
2室+書房
新幣 S$ 起
B4S(d)戶型 2室+Study 872平方英尺/81平方米
25%首付:S$ / 75%貸款:S$
30年貸款,2%利息,月供:S$
3室
新幣 S$ 起
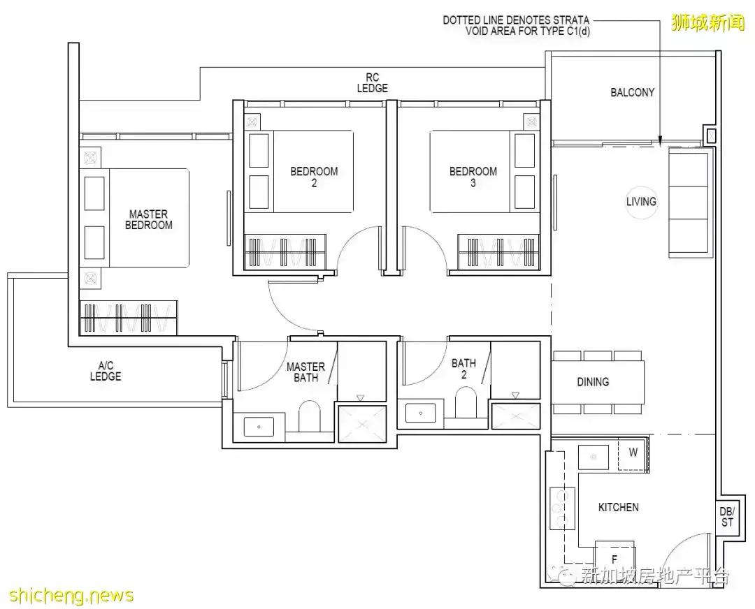
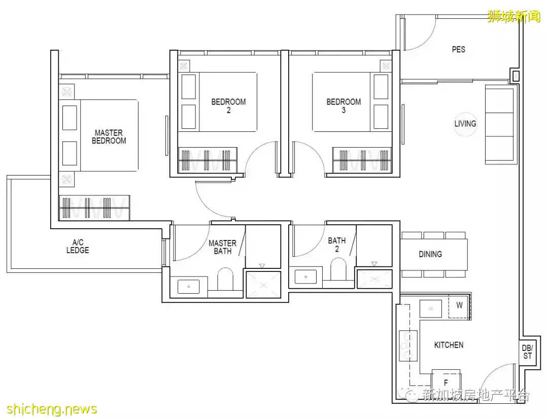
C1戶型 3室 883平方英尺/82平方米
25%首付:S$ / 75%貸款:S$
30年貸款,2%利息,月供:S$
3室
新幣 S$ 起
C1(p)戶型 3室 883平方英尺/82平方米
25%首付:S$ / 75%貸款:S$
30年貸款,2%利息,月供:S$
3室Flexi
新幣 S$ 起
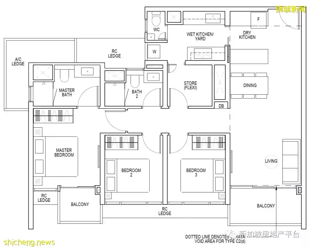
C2戶型 3室Flexi 1076平方英尺/100平方米
25%首付:S$ / 75%貸款:S$
30年貸款,2%利息,月供:S$
3室Flexi
新幣 S$ 起
C2(d)戶型 3室Flexi 1346平方英尺/125平方米
25%首付:S$ / 75%貸款:S$
30年貸款,2%利息,月供:S$
3室Flexi
新幣 S$ 起
C2(p)戶型 3室Flexi 1076平方英尺/100平方米
25%首付:S$ / 75%貸款:S$
30年貸款,2%利息,月供:S$
3室Flexi
新幣 S$ 起
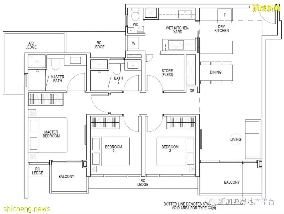
C3戶型 3室Flexi 1087平方英尺/101平方米
25%首付:S$ / 75%貸款:S$
30年貸款,2%利息,月供:S$
3室Flexi
新幣 S$ 起
C3(d)戶型 3室Flexi 1356平方英尺/126平方米
25%首付:S$ / 75%貸款:S$
30年貸款,2%利息,月供:S$
3室Flexi
新幣 S$ 起
C3(p)戶型 3室Flexi 1087平方英尺/101平方米
25%首付:S$ / 75%貸款:S$
30年貸款,2%利息,月供:S$
3室Flexi
新幣 S$ 起
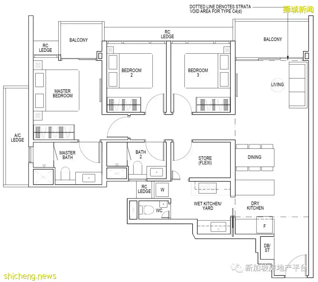
C4戶型 3室Flexi 1098平方英尺/102平方米
25%首付:S$ / 75%貸款:S$
30年貸款,2%利息,月供:S$
3室Flexi
新幣 S$ 起
C4(d)戶型 3室Flexi 1356平方英尺/126平方米
25%首付:S$ / 75%貸款:S$
30年貸款,2%利息,月供:S$
3室Flexi
新幣 S$ 起
C4(p)戶型 3室Flexi 1098平方英尺/102平方米
25%首付:S$ / 75%貸款:S$
30年貸款,2%利息,月供:S$
4室雙鑰匙
新幣 S$ 起
D2DK戶型 4室DK 1378平方英尺/128平方米
25%首付:S$ / 75%貸款:S$
30年貸款,2%利息,月供:S$
4室雙鑰匙
新幣 S$ 起
D2DK(d)戶型 4室DK 1647平方英尺/153平方米
25%首付:S$ / 75%貸款:S$
30年貸款,2%利息,月供:S$
4室雙鑰匙
新幣 S$ 起
D2DK(p)戶型 4室DK 1378平方英尺/128平方米
25%首付:S$ / 75%貸款:S$
30年貸款,2%利息,月供:S$
4室雙鑰匙
新幣 S$ 起
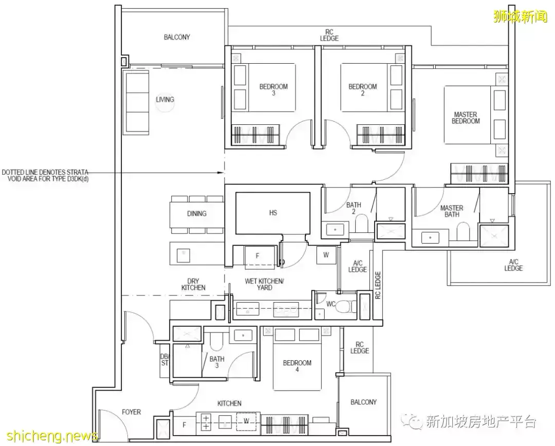
D3DK戶型 4室DK 1389平方英尺/129平方米
25%首付:S$ / 75%貸款:S$
30年貸款,2%利息,月供:S$
4室雙鑰匙
新幣 S$ 起
D3DK(d)戶型 4室DK 1658平方英尺/154平方米
25%首付:S$ / 75%貸款:S$
30年貸款,2%利息,月供:S$
4室雙鑰匙
新幣 S$ 起
D3DK(p)戶型 4室DK 1389平方英尺/129平方米
25%首付:S$ / 75%貸款:S$
30年貸款,2%利息,月供:S$
4室Flexi
新幣 S$ 起
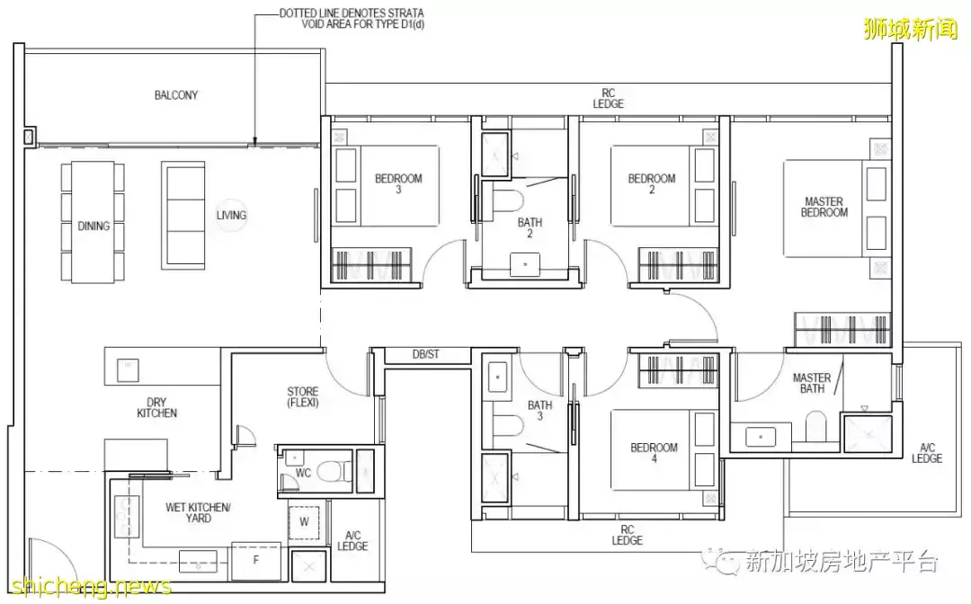
D1戶型 4室Flexi 1410平方英尺/131平方米
25%首付:S$ / 75%貸款:S$
30年貸款,2%利息,月供:S$
4室Flexi
新幣 S$ 起
D1(d)戶型 4室Flexi 1744平方英尺/162平方米
25%首付:S$ / 75%貸款:S$
30年貸款,2%利息,月供:S$
4室Flexi
新幣 S$ 起
D1(p)戶型 4室Flexi 1410平方英尺/131平方米
25%首付:S$ / 75%貸款:S$
30年貸款,2%利息,月供:S$
5室
新幣 S$ 起
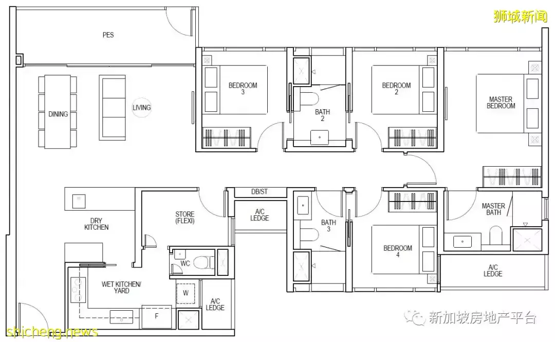
E1戶型 5室 1582平方英尺/147平方米
25%首付:S$ / 75%貸款:S$
30年貸款,2%利息,月供:S$
5室
新幣 S$ 起
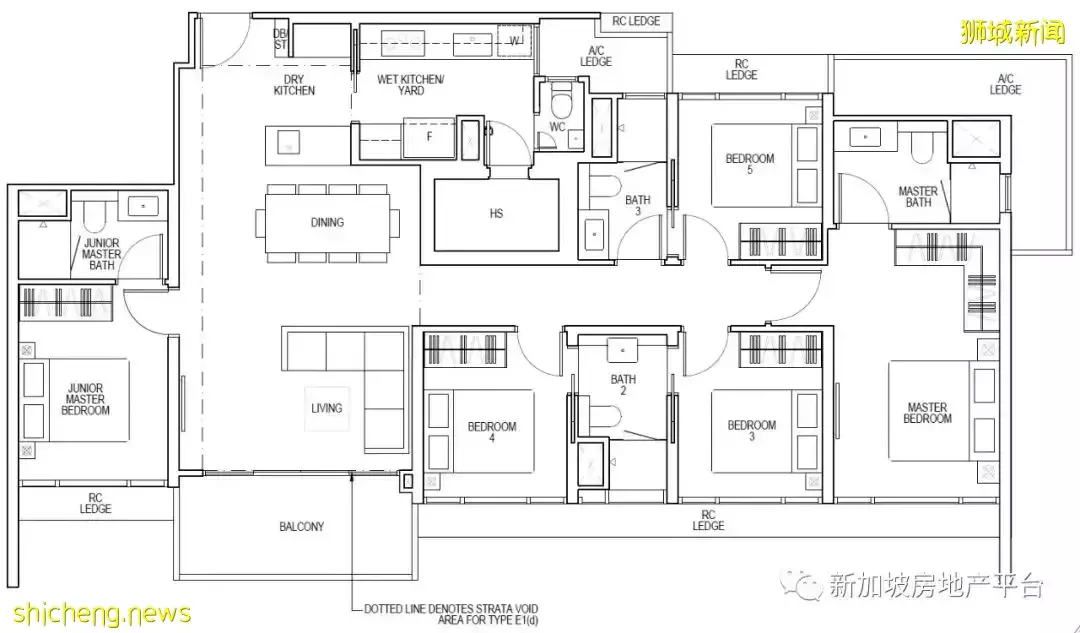
E1(d)戶型 5室 1894平方英尺/176平方米
25%首付:S$ / 75%貸款:S$
30年貸款,2%利息,月供:S$
5室
新幣 S$ 起
E1(p)戶型 5室 1582平方英尺/147平方米
25%首付:S$ / 75%貸款:S$
30年貸款,2%利息,月供:S$
5室Premium
新幣 S$ 起
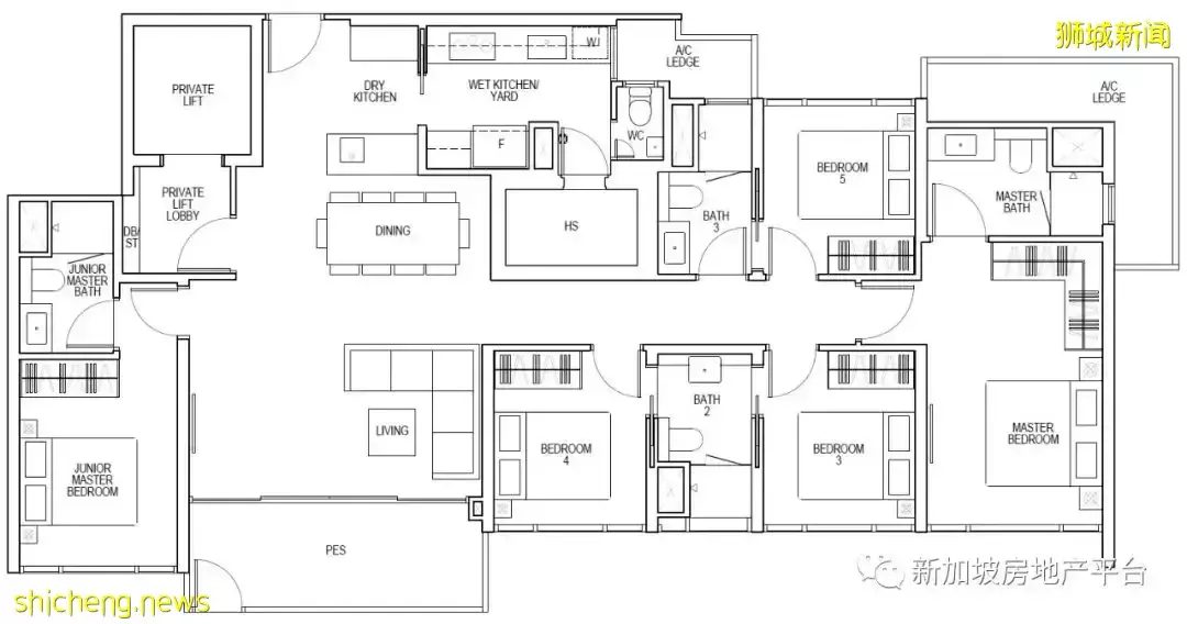
E2P戶型 5室Premium 1679平方英尺/156平方米
25%首付:S$ / 75%貸款:S$
30年貸款,2%利息,月供:S$
5室Premium
新幣 S$ 起
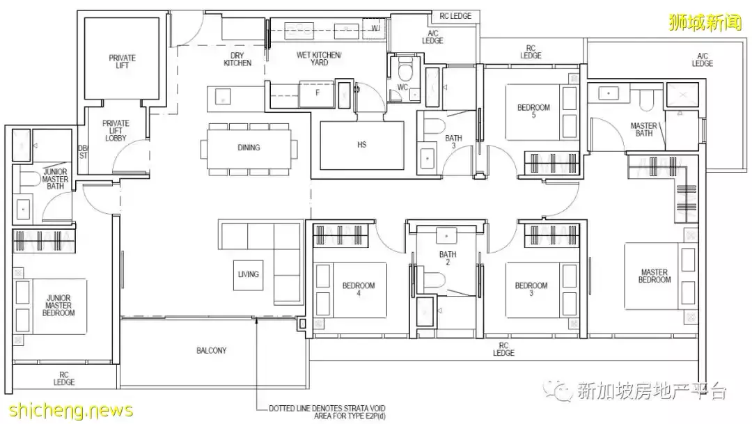
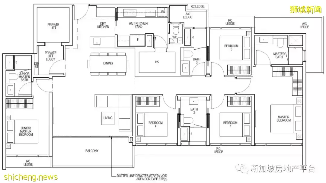
E2P(d)戶型 5室Premium 2045平方英尺/190平方米
25%首付:S$ / 75%貸款:S$
30年貸款,2%利息,月供:S$
5室Premium
新幣 S$ 起
E2P(p)戶型 5室Premium 1679平方英尺/156平方米
25%首付:S$ / 75%貸款:S$
30年貸款,2%利息,月供:S$
























































