(新加坡眼按:只有與當地自然環境和審美風格作最帖切的設計,才是從那裏“自然生長”出的建築。雞蛋花,中式庭院的園林山水審美哲學加上西方現代極簡主義,奇怪地混搭在一起。全世界可以拷貝這樣的創意,但是放在別的其他地方,都不如在新加坡這兒“長出來”的這棟房子那麽自然和惬意。)
來自建築師的描述:位于半獨立住宅的中央庭院分布在兩個樓層上。在首層庭院, 雞蛋花樹位于池塘的中央,池塘四周是木材飾面的框架。兩倍大的客廳和餐廳圍繞著這個庭院。
二層的庭院位于一層餐廳的正上方,二層主臥的前方。面向庭院的立面爲通高的玻璃,玻璃外面安裝有層疊咬合的垂直和水平木條。
庭院給予了住宅更多的私密性,同時也使得陽光可以射入中央的房間。此外也起到了充當隔離遠處主幹道噪音的緩沖區的作用 。
圖紙
↑地下室平面圖
↑一層平面圖
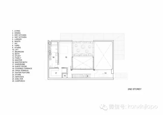
↑二層平面圖
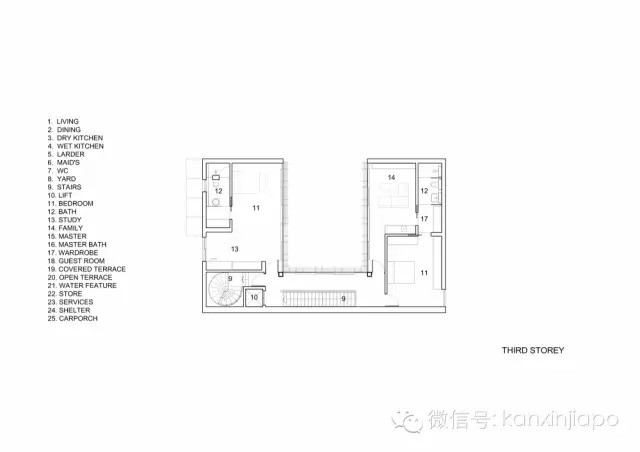
↑三層平面圖
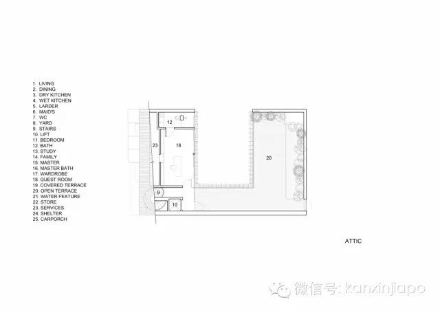
↑閣樓平面圖
↑立面圖
↑立面圖
↑立面圖
↑剖面圖
項目信息
設計:HYLA事務所
地點:新加坡,Greenbank Park
主創建築師:Mr. Han Loke Kwang
助理建築師:Yuzhe, Nicholas Gomes
建築面積:520平方米
建成時間:2014
攝影:Derek Swalwell
主要承包人:Praxis Contractors Pte Ltd
結構工程師:GCE Consulting Engineers
場地面積:376平方米
翻譯:建築學院-李賓
校對:建築學院-王峰
*本文來自于ArchDaily,由『建築學院』翻譯編輯,轉載請注明出處。
(新加坡眼再按一下:外國護照不允許在新加坡購買有地産業,所以就算你很有錢,就“審美”地欣賞一下本文好了。不過,有一種越買越少的地産項目,長得像別墅,買賣像公寓也就是說不受別墅的限制,外國護照也可以購買。點擊原文鏈接可以參考。)






































