新加坡4月,5月經曆了兩個月的封城期,整個城市都仿佛靜止了,街道上、車廂裏都是從未有過的安靜。
但是安靜的城市下面,竟然是熱錢湧動:大筆資金流入新加坡,私宅銷量猛漲!
讓人體會到什麽叫“金錢永不眠”! 外彙存款、非居民存款
創下新高
盡管新加坡4月的訪客創曆史新低,但是新加坡金融管理局的數據顯示,本地銀行的外彙存款今年 4 月比去年同期增加近三倍,至270億美元。
與此同時,新加坡非居民存款激增 44%,至620億美元,創該國自1991 年有記錄以來新高!
這些神秘的非居民是誰?包括了
境外居民是包括注冊地址在新加坡境外的人(包括海外居民)
在國外工作的新加坡人
在新加坡境外注冊的公司
(圖源:business time)
彭博智庫分析師在報告中指出:“受新冠疫情及其引發的市場震蕩影響,以及局部地區政局不穩,導致資金流入新加坡”。
(圖源:[email protected]_unlimited)
在全球市場動蕩之際,新加坡被是資金的避風港,投資者紛紛將財富投資于此,不止一個分析師這樣表示。
CGS-CIMB Securities研究首席分析師分析師安德烈·瓊(Andrea Choong)表示:“我們認爲,這是由于新加坡的安全港地位及其經濟穩定,即使在不確定或動蕩時期也是如此。”
分析師安德烈·瓊 (圖源:business time)
聯昌國際私人銀行(CIMB Private Bank)的經濟學家宋成文指出,自去年下半年以來,新加坡的外彙存款一直在增加,更多投資者可能會將資金存放在新加坡等這類型的避風港國家。
分析人士認爲,在不久的將來,外幣和新元的存款可能會繼續湧入,當然也很大程度上取決于地緣政治和整體經濟狀況。
至少目前新加坡對他們來說是一個不錯的選擇。
5月新私宅銷量上升
好勢頭持續將到年底 你以爲封城期沒人買房子嗎?那就大錯特錯啦,既然有存款流入銀行,肯定也有資金流入房地産。
畢竟,比起別的金融産品,新加坡房地産是最穩健的投資項目之一。
根據橙易産業(OrangeTee & Tie)在5月1日至24日,有322個新私宅單位售出,首24天的銷量已超過整個4月份的270個單位。
盡管受封城期的影響,展廳不得不關閉,但許多發展商都改爲制作樣品房視頻。大家對虛擬看房的接受度也越來越高。
特別對于購買新房(大多數爲期房)來說,房子還未建好,購買時候本身也需要看沙盤、樣板房和平面圖,所以是否實地看房差別並不大。
(圖源:propertyguru)
例如,據彭博社報道,3個中國買家未實地看房,直接只買走了濱海灣盛景豪苑的6套房子,總價值2000萬新幣。
最近一些買家,特別是豪宅買家,顯然認爲現在是“進場”的好時機。這些人往往長期看好新加坡經濟,認爲疫情後新加坡房價會有一個明顯上升。
如果論銷量,今年5月最暢銷的五個新私宅項目依次是:
1 錦泰門第(Parc Clematis)
2 聚寶園(Treasure at Tampines)
3 悅湖苑(The Florence Residences)
4 東景苑(Parc Esta)
5 和荟錦嘉園(The Tapestry)
每個項目都賣出了23至47個單位,房價中位數介于1314新元至1670新元每平方英尺。
同爲封城期間,5月比4月的房産銷量好,說明市場信心正在恢複。
等到新加坡解封第二階段,展銷廳和銷售活動能如常恢複,分析師認爲到時更多投資者和組屋提升者會認真考慮買房。
好房不等人 好價不等人!
種種迹象表明新加坡房地産市場已經開始逐漸回暖,料想很快房價也會進入上升通道,最近可能是“撿漏”的最後機會。
大家知道我上周5月31號推薦的“直降40萬好房”已經被搶光了!
武吉知馬小區促銷活動中,培華長老會和美以美雙學區房
這個位于第10郵區的永久地契項目,大促銷活動幅度高達40萬新幣,不到1周時間剩余16套房源全部賣掉。
商業時報BusinessTime有追蹤報道,有些買家因爲動作較慢可惜沒買到。
如果您錯個項目,接下來有個第9郵區烏節路一帶的項目會有促銷活動!同樣也是永久地契的好項目,高達6位數的大促銷,你要抓住這個機會嗎?
今天推薦的武吉知馬項目,發展商提供1房和2房的單位促銷活動中。
Mayfair Modern
發展商 豪利控股 地契 99年 樓盤占地面積 8579平方米 所處地段 地處武吉知馬富人區 靠近地鐵站 阿爾伯園地鐵站(藍色線) 預計交房時間 2024年12月 戶型 一臥室到四臥室 總單位數 171個單位
項目要點:
-雙名校學區房,美以美女子小學和培華長老會小學
-步行到King Albert Park 阿爾伯園地鐵站只需5分鍾
-地處優質洋房住宅區、私人公寓爲主,屬于低密度高檔住宅區
-靠近武吉知馬中心、跑馬場,生活便利
-未來的泛島地鐵線已確定經過這一帶,潛在房産增值
-美世界地鐵站周邊轉型,預計有一個大型綜合項目開發
-配備智能家居系統,享受科技帶來生活便利
促銷活動: 現在發展商提供新2房促銷活動多達12.8萬,保持原有1房促銷活動,有興趣朋友盡快聯系我!
地點優越有升值潛力
地處著名的富人區-武吉知馬一帶,靠近武吉知馬自然保護區,擁有漂亮的視野,周圍都是優質洋房區(GCB),新加坡等級最高的洋房,周圍環境清幽,只需約5分鍾步行到King Albert Park 阿爾伯園地鐵站(藍色Downtown線)
市區重建局2019年新藍圖規劃,項目附近一塊占地468000平方英尺的地塊改爲商業住宅的綜合地塊,該地段離Mayfair Garden項目只有500米,這地塊發展成商場和住宅綜合項目就如實龍崗的Nex Mall、宏茂橋的Amk Hub商場、大巴窯商場一樣。
美世界一帶將重新發展,將會打造全空調覆蓋的巴士轉換總站,也將建設巴刹(像國內菜市場)和熟食中心,還有武吉知馬民衆俱樂部,陸路交通管理局LTA規劃將來泛島線將會設地鐵站在這裏,會極大提高Beaty World美世界一帶的交通便利性。
來自萊坊Knight Frank研究數據顯示,通常有商住綜合項目價格會20-25%高出純住宅單位,等這個綜合地塊(如下圖)建成後,勢必帶動周邊房産的增值。
頂級名校雲集
周邊名校聚集,1公裏範圍內有著名小學美以美女校和培華長老會小學,這兩所學校在新加坡排名很高,而且是相對容易進的小學。
萊佛士女子小學(RGS)、南洋小學(Nanyang Primary School)、美以美女子小學(Methodist Girls’ School))、恒力小學(Henry Park Primary School)、英華中學(BarkerRoad)、華僑中學(Hwa Chong Institution)、南洋女子中學美以美女子中學、國家初級學院和華中初級學院。
此外,靠近許多國際學校如伊頓國際學校(EtonHouse International School )、華中國際學校(Hwa ChongInternational School)、德國歐洲國際學校(、瑞士國際學校、荷蘭國際學校和韓國國際學校,周圍擁有政府排名靠前的小學、中學、初級學院(高中)、國際學校,全方位滿足您的小孩教育需求,讓您的孩子贏在起跑線。
商場林立,生活便利
周圍商場林立,生活便利,商場[email protected]有Cold Storage超市,武吉知馬廣場Bukit Timah Plaza有NTUC Fairprice超市、餐館、零售店,美世界廣場Beauty World Plaza有Giant超市、餐館和補習中心等。
還有我們常說的跑馬場Turf City所在地的The Grandstand商場裏面有大型餐館阿一海鮮、Dancing Crab、同樂餐館、南記、奇怪海鮮市場等,這裏還有適合小孩的遊樂場,遛娃好去處,您可以約家人朋友一起去滿足享受美食,全面滿足您生活方面的需求。
參考下面地鐵圖,只需三站地鐵到達植物園,遛娃和喜歡戶外活動的朋友們絕對好去處,可以在植物園地鐵轉搭黃線地鐵環線,可以轉到波那維斯達,實龍崗等地,通過藍色地鐵線可以直通到位于中央商業區(CBD)的市中心地鐵站(DowntownMRT)。
只需6-7分鍾的車程就可以到荷蘭村和植物園,約11分鍾車程便可到達購物天堂烏節路。
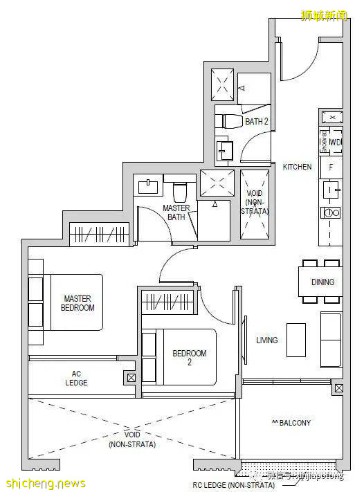
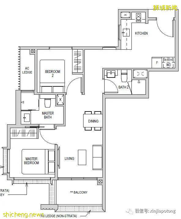
戶型介紹和參考價格
1臥室戶型,面積48平方米,價格103.5萬起,現在促銷價格95.8萬新幣起
2臥室戶型,面積64平方米,原價149.2萬,現在促銷價136.7萬新幣起
2臥室戶型,面積67平方米,廚房可設計爲封閉式,價格148.1萬新幣起
3臥室戶型,面積89平方米,大主臥,封閉式廚房,價格195.3萬新幣起
4臥室戶型,面積120平方米,大客廳配大陽台,價格256.4萬新幣起
四臥室樣板房圖片 樣板房實拍圖片,客廳帶挑高4.5米哦!
來源:https://www.shicheng.news








































