接廬在人境,而無車馬喧
今年將登場的項目都不太大
除掉EC,其余公寓加起來都沒Normanton Park大
第五郵區其余剩下單位加起來也沒Normanton Park多
鑫悅府一年來一直大賣,崔哥有飛龍在天的感覺
科技園要投入8.83億新幣翻新加高
搞生命科學和創新驅動的消息
更是在火熱的銷售上加一把油
這個Science Park Drive就在鑫悅府Park旁邊
除了11.25萬平米的辦公樓,還有3700平米做零售和餐飲
買家生活不方便的擔心被化解了
而且天上掉下來了許多租客
估計崔哥睡覺都要笑醒了
我覺得Normanton Park還有投資價值
相對于士嶺坡12xxpsf的地價
Normanton Park地塊這麽大才969psf
那邊B塊地是崔嫂去標的,爲啥夫人出動呢?
而且這個樓盤建很快,靠馬路這邊估計都要封頂了
我感覺明年中就有望交房
前面的Sports Complex也在建了
對面的Grab Office已經陸續有員工搬過來
我之前有個在附近工作的客戶一直看來看去
當時開盤也參加抽簽了的
抽靠後面就賭氣沒出現選房
後來想通了想去買看了看最高普通兩房是4樓
父母不同意4樓說不吉利就錯過了
現在所有的二房都賣完了
當時也看了Parc Clematis 118萬可以安靜兩房
現在140萬才能買到吵的了
一年時間,當時沒買,現在也不知道買哪
因爲到處起了不少,他還想年初價格
我能有啥辦法呢
現在Normanton Park的1,3,4房還有不少好選擇
千萬不要以爲是選剩不好單位
其實這個項目的每個單位view都不錯,沒啥遮擋
現在主要是價格問題
有些戶型起很少,有更大升值潛力
Normanton Park周邊的政府規劃
歡迎找我了解圖裏的有2個奧秘
有些人嫌偏,沒看到未來發展
現在愛理不理,以後就買不起
Normanton Park今年開盤至今賣了一大半
估計價格又要起一些
這是一半樓盤的起價流程
開盤13個月賣掉88%,表現相當好
除了這個樓盤位置和設計好
我覺得崔哥用了2招
借助中介推廣和到處打
以及對買家低價引誘
使得這個樓盤比較成功
期間也有一些漲價
主要是托地點的福氣,因爲周邊租客素質高
科技園有1萬員工新規劃還會漲,一緯那邊有5萬員工
周邊很多大公司
許多員工會買或租這邊
這邊主要的好處除了離公司近,靠近公園也是舒服
以下是stack價目表的Starbuy
只是許多stack已經賣掉了
這個樓盤的特點是每層樓加價很少
有些2-4房才2-3千一層的差價
許多單位特別是小戶型剩下已不多
鑫悅府賣點總結
這個樓盤有22個別墅
前面有像獨家的遊泳池
別墅目前比開盤時便宜,想看隨時問我
這個項目我做過GM,感謝朋友們的無以倫比的信任和同事們的熱心支持,開盤那天從早上7點半忙到晚上11點,除了稍微幫些打雜的事,也以3個單位的小成績完成了2周的preview,是夏某從業以來新盤開盤最好的成績,最後送OTP到朋友家一起吃了半小時的富貴柚,要看Normanton park 的朋友歡迎聯系,要tagging 的可以找我,一般拜四都在~
我覺得我這次成功的經驗是燒香了有貴人相助,這次抽簽真的對我買家很好,想買的都在前面,不太想買的大都在後面,還有個沒拿到身份99%概率不會買的排在倒數第二簽。
上次貼幾句感概,引來老爸一句經典的話,
與大家共勉:
引路靠貴人,走路靠自己。成長靠經曆,福報在路上。
這兩周的Preview經曆,挨了許多罵
吃了許多苦,生了許多氣
不過人生就是一種經曆
所有的風雨都會過去
風雨過後就是彩虹
學到一些知識
被人搶走了2個單
有一些故事可講就行
樣板房從1月2日開放,開發商還帶IC等各中介頭子去拜神燒香了
這是我作爲學到的第一課
以前不知道開盤還有燒香這回事
在越南開盤是有買豬頭祭拜土地神的
我們老家動土上梁都要燒香拜神的
GM真的很辛苦,沒事就要去做Duty
每天背著一大包資料和電腦來回家
那天有個也想嘗試GM兄弟我們抽到1位on duty想serve walk in
可惜天降大雨,他在外面排了一上午腰酸背痛
下午也必須排那邊因爲first in Q可是望穿秋水也沒一個
因爲Covid很少walk in,再加上天氣不好
于是覺得不劃算,晚上就不幹了
之前抽了他第一位,大家還羨慕嫉妒恨,
我是倒數第一,反而可以安心serve customer和幫組員
真是塞翁失馬,焉知禍福
就像Normanton Park,本來是2年前開盤的
要面臨Parc Clematis和Stirling Residence直接競爭
現在那兩個小戶型都賣差不多了,Clavon大賣也鼓舞士氣
碰到疫情對One North的新經濟大大的利好
許多人沒聽過的Sea Group居然市值超過千億美金了
産生了許多千萬富豪,這些人買房分分鍾的事
有朋友也認爲這個位置很好的。早年他在北京買房,買離cbd近的,後來發現根本不對,以前上地那邊誰當回事啊,互聯網崛起後飙升,雖然cbd附近的也漲,不可同日而語,北京房價漲幅,是挨著互聯網科技走的。
深圳,老城區是羅湖,福田,以前常說的華強北。但現在哪裏漲,前海,蛇口,深圳灣,騰訊周邊才是王道,此外就是大學和科技園區。
現在新加坡,SEA已經成長,股價220美金,市值已經是DBS的2倍,高科技企業都是圍繞大學,有國大在附近就不錯,那些窮學生爆發力很強的,有句老話叫莫嫌少年窮。我也發現許多中國買家的名字,也許是新公民或PR,最貴的3個公寓是中國人買下的,來自山東,包括2個5房penthouse。
硅谷的發展,有兩個重要的因素:一是高校,一是産業園。硅谷這片區域,集中了包括史丹福大學、加州大學伯克利分校、聖何塞州立大學在內的多所高校。同時,高校的周圍形成了聚集各類高科技公司的産業園,這樣前沿科技可以快速運用到産品之中,並被迅速推向市場。
中關村是環繞清華北大,深圳的南山科技園有許多東南飛孔雀和政策支持,武漢的光谷靠著武大和華科,印度的班加羅爾科技園靠近IIT。
One north就是新加坡的中關村,主要有A*STAR産業園和一系列polis。A*STAR全稱爲Agency for Science, Technology and Research,新加坡科技研究局,是新加坡貿工部旗下的自治研究機構,相當于中國中科院一樣的存在。科學院這邊是SEA,市值已經超過DBS躍居東南亞第一,入駐新加坡科學園的企業既包括索尼、艾克森石油公司、英國石油公司這樣的跨國公司(MNCs),也有爲數衆多的中小型企業(SMEs)。Mapple business city那邊是谷歌新加坡。高科技從業者不喜歡奢侈品,豪車,但買房從不手軟,有些沖冠一怒爲紅顔,買套房求婚是很正常的,在中國這些年,可是領教過的。
Normanton park項目周邊聚集了:
NUS國大 / Science Park科技園 / One North “硅谷” / ACS&ACJC / UWC / Kent Ridge Park肯特崗公園 / GSW
這一帶是新加坡高科技的科研中心,“新加坡的硅谷”。電商巨頭Shopee, 本地版滴滴Grab總部都落戶于此。
68萬平方尺超大占地面積、超多公寓設施
小區免費接駁班車直達地鐵
已經在建到2-4樓,2023年即可交房
這個小區超級大,有680千平方尺,
正適合那些喜歡賺錢不太會花錢的高科技人員
爲了能順利拿回買地的ABSD,開發商希望能在拿地的5年內賣光
還剩下3年時間,開發商一定會賣掉的
1. 概論
結廬在人境,而無車馬喧,這是古人向往的理想生活,也是不少現代人的夢想家園。Normanton Park鑫悅府,雖然靠近One North科技園地處繁華之境,但是卻無喧囂鬧市之感,東南兩面挨著Kent Ridge Park,西邊是Sicience Park,北邊一條大路通向市區和機場,有點像古人名仕所向往的理想生活狀態。
鑫悅府就像穿越了時空,悄然而至,賞花望海,快意人生,我第一次看到這個效果圖就被打動了,真是大氣呀,好久沒有看到這麽氣派的小區設計了,9棟樓圍成一個圓圈,中間一大塊都做設施,2樓就離地面19米高,相當于普通6樓高度,室內2.75m層高。南部超過15樓可以看到海景,北邊可以看到武吉知馬山。這裏的海景房估計比The Reef便宜了$700psf。
這邊小區很大,我覺得很適合適合那些在附近工作的年輕人買來自住,或者家在附近的買一間來投資,自己留一張卡,周末就帶孩子去小區玩,相當于是拿了某個會所的會員。
我之前陪了個客戶去巡山,在Kent Ridge Park那邊轉了一圈,這是那邊的景色和視頻,那邊空氣很清新,蟲子叫聲很悅耳。
想要再來巡山的朋友也可以告訴我,一邊唱著大王叫我來巡山,抓個和尚做晚餐。我們south ridge徒步群也會在不定期組織登高徒步活動,歡迎報名。
鑫悅府設計理念貼近綠色和水體空間,園林設計借鑒亞馬遜森林的風格,中央泳池猶如蜿蜒的亞馬遜河,約80%的地面公共區域被綠化和泳池覆蓋。因此,身處鑫悅府猶如置身于大自然中。南邊兩塊大的泳池都是70米長,怕遊泳的人累壞,沒有做140米長的泳池,而是用一個長堤把兩塊泳池分開,通向中間主要的gym和club house.
我前一篇文章崔哥的Normanton Park月底26日開盤,明年1月9日選房,第一期會爲了未來2年內賣掉而低價走一批,歡迎咨詢,本來Kingford是中了No Sale Liscence需要等TOP才賣,但開發商走了Quality Mark Certification的程序,請政府對所有單位進行了質量檢測,All Units will receive BCA Quality Mark for Assurance upon TOP。這是高級別的質量審查程序,開發商自願申請,政府並不強制,最終合格證書是頒發給每個單獨單位的,所以開發商不成功便成仁,必須盡心建好,買家不用太擔心質量問題,而且建築商是MCC,後者後台是曆史悠久的大型央企中冶置地MCC,有開發許多樓盤,Poiz Residence, Queens Peak等。
大家一定要來看看樣板間,大方大氣,每個單位都有很好的View,整個樓盤占地面積是20.6%,其余80%是設施和綠化。泳池像亞馬遜河流的感覺,想要高清site plan的朋友可以私信我。
這個樓盤也透著濃濃的中國風和土豪特色,客廳地板是用1.5m x 0.75m的大片瓷磚,房間是棕紅色的實木地板,風格當然是金色爲主,否則怎麽對得起名字裏的鑫字,許多新加坡人不認識這是啥字。
客廳很寬,有個普通房都很大有9.2平米,感覺開發商蠻了解買家需求,二加書房以上有明廚明衛,即廚房廁所有窗戶。
這個項目也比一般的會早交房,開發商是說2023年交,但我覺得會比較早,可能2022年底,因爲地基已經打好了,已經在建第二層。
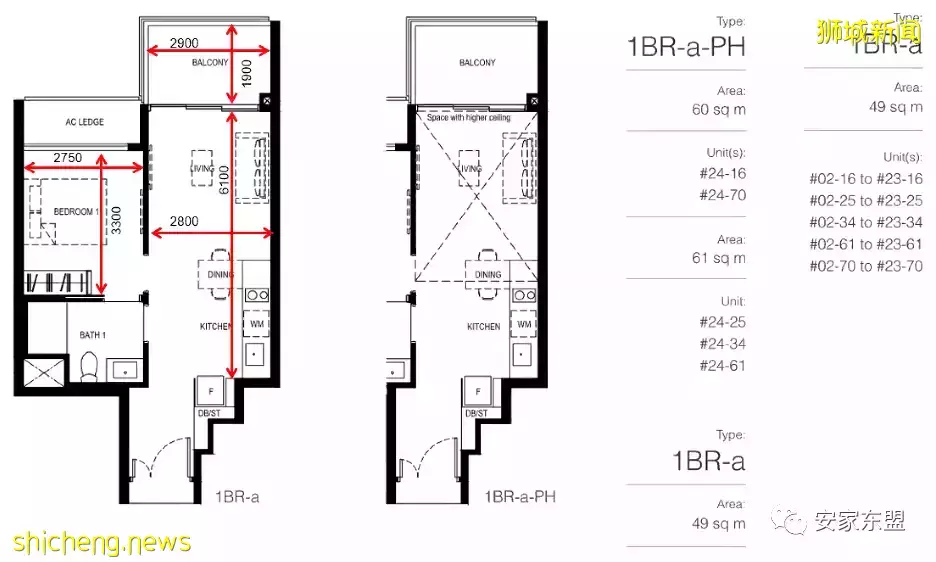
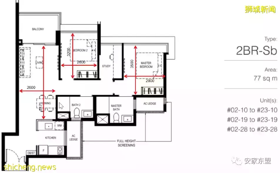
下面的戶型圖有詳細尺寸,方便買家,需要的朋友可以聯系我。
一臥的戶型,49平米:
一臥+書房的戶型,49-53平米:
各種兩臥,61 – 77平米:
豪華三臥,102平方米
豪華四臥,122平方米
豪華5臥,150平方米
別墅
整個項目的1,2,3房分別占30%,其余10%是4房5房和別墅。 Clavon和Parc Clematis的一房已經售光,2房也剩下不多,有許多買不到Clavon的轉到Normanton Park。
物業費也是超級低
來看視頻感受一下
2. 優越的地理位置與便利的交通
鑫悅府位于新加坡的第5區,最近單位離AYE 超過100米,挨著科學園大道,緊靠新加坡科技園Science Park和國立大學,開發商說是”西部門戶”,說實話我沒聽過這個稱呼,不過開車位置是方便,坐公交也有好辦法,開發商也會提供shuttle bus去Kent Ridge MRT和Buona Vista MRT。
周邊有One-North和Greater Southen Waterfront等有長遠發展潛力的地方,一直有故事可以講。
周邊的Master Plan越來越細,說明政府隨著GSW的深入在重點打造這一塊,小區南部也規劃了一條公路,未來從Portsdown Road到South Boona Vista Road的道路將被修建,以減少旅行時間和距離。小區也有預留了一個入口給未來的新路。
NormantonPark的正前方是曆史悠久的肯特崗公園(Kent Ridge Park),新加坡南部最好的徒步線路是South Ridge,一路都有綠蔭遮蔽,將南部最好的海岸線盡收眼底,一般是從Harbour Front到Normanton Park,也可以走到國大醫院,想中途退出也可以在Alexandra Bridge或Hort Park。
我經常有組織朋友去徒步South Ridge,起碼有12年曆史吧,也算是交友相親之旅,許多人走著走著手就拉到一起,也有後來還帶孩子來徒步的。
想入群的還歡迎加我微信tianpengxia1984,春節打算登高走一次,反正解封第三階段已經開始,到時帶口罩走應該沒問題,按照老路線,大家就從Harbour front MRT 開始走,Normanton Park終點,最後去附近吃泰國餐吧,我可以請客。
3. 便利設施
衆多便利設施爲鑫悅府居民提供了更多便利,除8個商業單位可滿足您的日常需求外,旁邊科技園還有許多餐廳,Ikea也在附近,去Vivo city也算方便,開發商會提供2年的免費巴士到Buonavista和Kent Ridge MRT。
4. 教育設施
鑫悅府周邊教育設施和Clavon類似,以中學和大學爲主,如國大,英華中學高中部(自主),新加坡理工學院,東南亞聯合書院(UWCSEA)等等。
不過1公裏內沒有小學,1-2公裏有三所小學,花菲衛理會小學,女皇鎮小學,新鎮小學。
5. 升值潛力
公寓緊靠Mapletree business city,國大和科學園I和II,這將吸引住戶和投資者到鑫悅府。
周邊租客比較有實力,那邊租金非常高。
緊鄰著名教育帶,著名工業園區,和未來GSW的發展都會爲鑫悅府帶來穩步增值的空間。
6. 項目信息
Normanton Park 鑫悅府占地面積61409平米,是西部最大的樓盤。
公寓有100多種公寓設施,9棟24層樓高的建築,將成爲又一個西部地標性建築,就像D’Leedon, Interlace和Principal Garden。
公寓戶型覆蓋了1-5臥室單位,還有聯排別墅和商店。6萬1平米的面積,有1862個住宅單位和8個店鋪。
南邊風景
北邊風景
東邊風景
西邊風景
Smart home概念許多小區都有點,但這個小區smart home feature有些與衆不同的,還有許多國內智能家居的一些好點子,等你來看房我再告訴你。
小區還有8個店鋪,其中一個會是餐廳
7. 鑫悅府價格
大家最關心的還是價格,根據以上估算的盈虧平衡最低價格爲$1482每平方英尺
崔哥說前800位買家和中介有機會抽10輛奔馳車,如果你有興趣買個投資或自住房,都可以考慮這邊,如果抽中了車不要的話,可以賣車給我,雖然現在COE現在漲很猛,但一輛奔馳起碼抵8萬,相當于2張COE。我感覺一炮而紅之後,開發商沒啥大的壓力,以後會起價,能順利在拿地5年內的期限內賣出。
這個樓盤因爲已經建了不少了,會比最近同期開盤的樓盤早兩年入住,我認爲大概23年中能入住。
8. 總結
這是新出來的一手資料,我也是Tagger,我家離這邊很近,10分鍾就能到,找我看房或Tag都行。
開發商申請了COH去做100% check,之前設計和現場不符合的問題沒有了,崔哥只有背水一戰,這個樓盤會隨著周邊高科技行業發展而繼續大賣,現在已賣88%,剩下不多,歡迎找我拿詳細戶型圖和樣板房尺寸圖,也歡迎聯系我隨時看房~
采菊東籬下,悠然見南山。Normanton Park真的可以看到南山(南部山脊),15樓以上就可以看到海,而且不用聽到高速的大海,每層樓差價很小。這個項目賣很快,有想看房的隨時跟我說,我家在附近,可以隨時安排。









































































